• Sledovat cenu
  •  

Zasílání upozornění emailem:

Pronájem bytu 2+kk, 65 m2 - Ústavní 413, Praha (již není v nabídce)

Cena: 15 000 Kč/měsíc
Stav:archiv
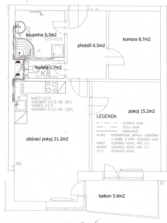
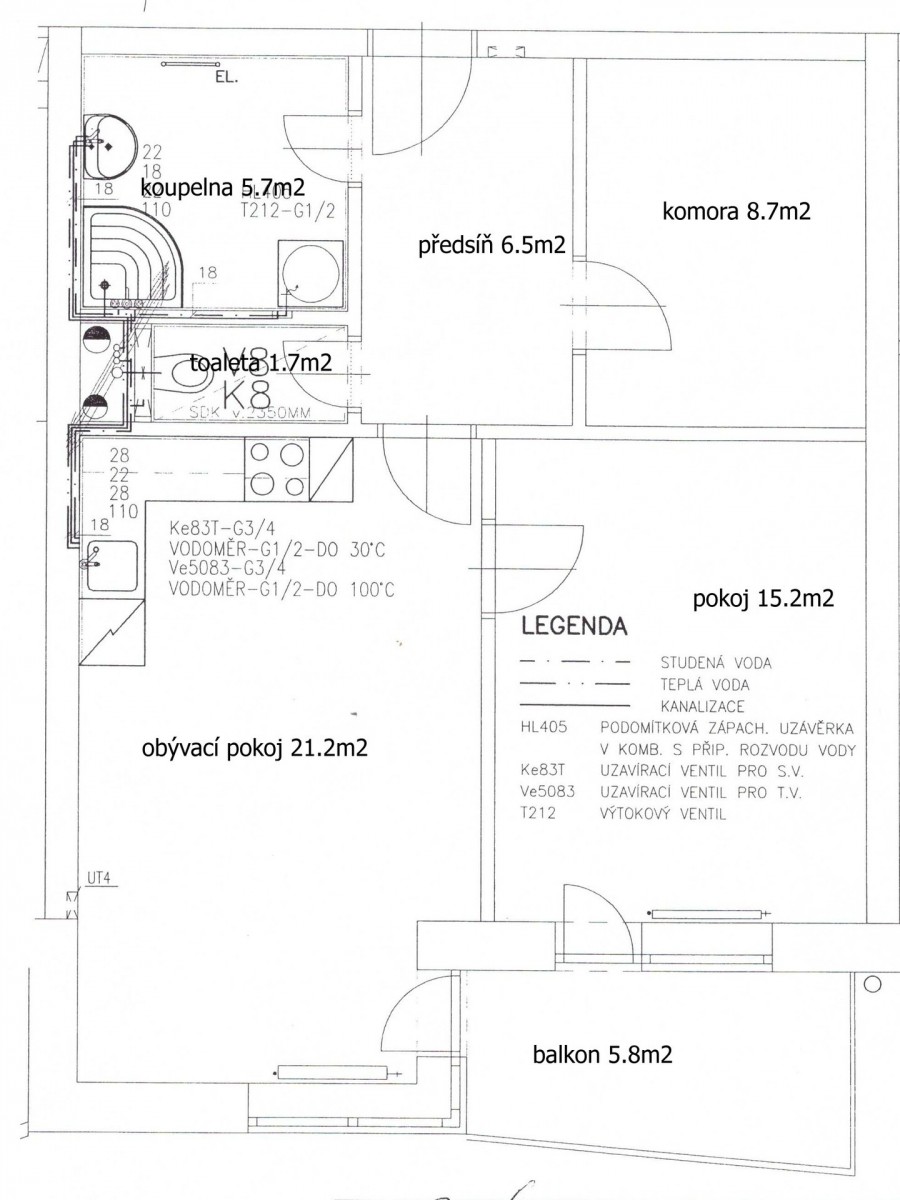
2+kk, 65 m2, cihlová, OV, 4. podlaží
Popis: Nabízím k pronájmu novostavbu bytu 2+kk/B + prostorná komora v bytě (8. 7m2), vlastní parkovací stání (č. 24), osobní vlastnictví, 64. 8m2 (byt 59m...2 + balkon 5. 8m2) v uzavřeném bytovém komplexu na Praze 8 - Bohnice, ulice Ústavní. Byt se nachází ve 4. nadzemním podlaží pětipodlažní cihlové novostavby z roku 2005 a je orientován na východní stranu (okenní žaluzie). Skládá se z předsíně (6. 5m2), obývacího pokoje s kuchyňským koutem (21. 2m2) - vestavěná kuchyňská linka - sklokeramická varná deska, elektrická trouba, digestoř, myčka nádobí a lednice s mrazákem, ložnice (15. 2m2), koupelny se sprchovým koutem (5. 7m2), samostatné toalety (1. 7m2) a komory (8. 7m2) - možno popř. využít jako pracovnu. Podlahovou krytinou bytu jsou plovoucí laminátové podlahy, v předsíni, komoře, koupelně a na toaletě dlažba. Kabelová televize přivedena do bytu. Možnost dalšího bezproblémového parkovaní před domem. V domě se nachází prostorná sušárna a kolárna. V místě je veškerá občanská vybavenost, 2 min. chůze supermarket Lidl, Penny, 10 min. nákupní centrum Krakov, mateřská školka před domem, základní škola, dětská hřiště, nedaleko plavecký stadion Šutka, ZOO Praha, Botanická zahrada, Čimický háj a Drahaňské údolí pro procházky a trávení volného času. Dopravní dostupnost MHD autobus (177, 202, 152, 905), 2 min. chůze - cca 7 min metro "C" Kobylisy. Nájem: 15. 000, - Kč, zálohové platby spojené s užíváním bytové jednotky: 5. 597, - Kč (2 osoby), elektřina v bytě 1. 400, - Kč/měsíc, jistota: 15. 000, - Kč, provize Zprostředkovatele: 18. 000, - Kč. Volné od 1. 4. 2023. V případě zájmu o prohlídku či více informací neváhejte kontaktovat makléře nemovitosti.
  • Vložení inzerátu:
    3.3.2023
  • Kód:
    00263
  • K dispozici od:
    0.0.0
  • Typ nemovitosti:
    Byt
  • Typ budovy:
    Cihlová
  • Dispozice:
    2+kk
  • Vlastnictví:
    OV
  • Podlaží:
    4
  • Podlahová plocha:
    65 m2
  • Balkón:
    6 m2
  • Stav objektu:
    Novostavba
  • Rok výstavby:
    2005
  • Rok kolaudace:
    2005
  • Telekomunikace:
    Internet, Kabelová televize
  • Voda:
    dálkový vodovod
  • Elektřina:
    230 V
  • Doprava:
    silnice, MHD
  • Topeni:
    ústřední dálkové
  • Odpad:
    kanalizace
  • Komunikace:
    asfaltová
  • Energetická náročnost:
    C - Úsporná
  • Podle vyhlášky:
    c. 78/2013 Sb.
  • Ukazatel náročnosti:
    355.2 kWh/m2
  • Nabídky v okolí:
  • Informace o obci:
    Obec Praha má 1257158 obyvatel, z toho 889974 v produktivním věku.
    V obci se nachází pošta.
    V obci se nachází škola, popř. školka.
    V obci se nachází zdravotní zařízení.
    V obci je rozvod kanalizace.
    V obci je rozvod městské vody.
    V obci je rozvod plynu.

Podobné nabídky v okolí

Lokalita: Ústavní 413, Praha, Česká republika Ústavní 413, Praha