• Sledovat cenu
  •  

Zasílání upozornění emailem:

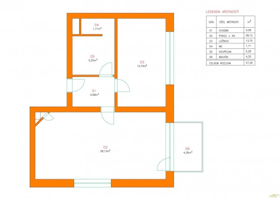
Pronájem bytu 2+kk, 58 m2 - Z. Kopala 1252, Litomyšl-Město, Litomyšl, okr. Svitavy

Cena: 14 000 Kč/měsíc
Stav:Volný
2+kk, 58 m2, cihlová, OV, 2. podlaží
Popis: Dobrý den, jste nároční i v případě pronájmu bytu? Máte rádi novostavby a bydlení v nových lokalitách? Hledáte byt v dobrém poměru cena/ výkon? Možná právě Vás by mohla zaujmout naše nová nabídla.

Jedná se o byt ...
le="2 pokoje + kuchyňský kout">2+kk (58 m2) s balkónem, který se nachází ve 2. NP (druhé nadzemní patro) zděného domu včetně výtahu dokončeného v roce 2018 v klidné části Litomyšle, ulice Z. Kopala. Byt je orientovaný na jihozápad. Dominantou bytu je prostorný a dobře prosvětlený obývací pokoj se vstupem na balkón. Součástí nájmu je kuchyňská linka včetně elektrické trouby, indukční varné desky a odsavače par. Na oknech jsou žaluzie.

Výše nájmu činí 14. 000, - Kč + 3. 900 Kč zálohy na energie, peněžitá jistota (vratná kauce) je ve výši 30. 000, - Kč, provize RK 14. 000, - Kč.

Byt je volný od 1. 1. 2026, po dohodě možno i o pár dní dříve.

Možnost parkování v městském parkovacím domě za těchto podmínek: 700 Kč/ měsíčně kryté stání a 350 Kč/ měsíčně venkovní stání.

Omlouvám se za kvalitu fotografií.

Děkuji, Václav Růžička, realitní specialista.

Pronajímatel si vyhrazuje právo vybrat nájemce na základě jím zvolených kritérií.
  • Vložení inzerátu:
    22.10.2025
  • Kód:
    XA-268
  • Typ nemovitosti:
    Byt
  • Typ budovy:
    Cihlová
  • Dispozice:
    2+kk
  • Vlastnictví:
    OV
  • Podlaží:
    2
  • Podlahová plocha:
    58 m2
  • Plocha parcely:
    53 m2
  • Balkón:
    Ano
  • Stav objektu:
    Novostavba
  • Bezbariérový byt:
    Ano
  • Topeni:
    lokální plynové
  • Bezbariérový přístup:
    Ano
  • Energetická náročnost:
    B - Velmi úsporná
  • Podle vyhlášky:
    c. 78/2013 Sb.
  • Nabídky v okolí:
Lokalita: Z. Kopala 1252, Litomyšl-Město, Litomyšl, okres Svitavy, Česká republika Z. Kopala 1252, Litomyšl-Město, Litomyšl, okr. Svitavy

Kontakt




  • Objednání prohlídky a více informací
  •  
  • Poslat na e-mail
  •  

Zasílání odkazu na realitu emailem: