• Sledovat cenu
  •  

Zasílání upozornění emailem:

Pronájem bytu 2+kk, 56 m2 - Fibichova, Chrudim III, Chrudim, okr. Chrudim

Cena: 13 000 Kč/měsíc
Stav:Volný
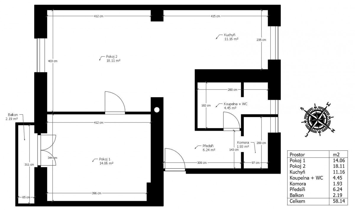
2+kk, 56 m2, cihlová, OV, 2. podlaží
Popis: Dobrý den, hledáte byt v dobrém stavu a klidné lokalitě v Chrudimi? Uvítáte částečně zařízený byt? Požadujete byt s balkónem?

Možná právě Vás by mohla zaujmout naše nová nabídka.

Jedná se o pronájem bytu upraveného z <...abbr title="2 pokoje + 1 kuchyň">2+1 na vzdušnou dispozici 2+kk o výměře 55, 95 m2 + balkón a sklep. Byt je umístěný v 2. NP (druhé nadzemní patro) zděného bytového domu bez výtahu. V minulosti prošel při změně dispozice částečnou rekonstrukcí. Nyní bude provedena realizace ústředního plynového vytápění.

Lokalita: ulice Fibichova, Chrudim.

Pronájem je včetně vybavení (lednička, pračka, sporák, jídelní stůl se židlemi, obývací stěna, křesla, pohovka, botník, věšák, šatní skříň).

Výše nájmu činí 13. 000 Kč + 3. 500 kč zálohy na energie. Peněžitá jistota (vratná kauce) 30. 000 Kč. Provize RK 13. 000 Kč.

Volný od 15. 5. 2026.

Děkuji za pozornost. Václav Růžička, realitní specialista.

Pronajímatel si vyhrazuje právo vybrat nájemce na základě jím zvolených kritérií.
  • Vložení inzerátu:
    16.4.2026
  • Kód:
    XA-475
  • Typ nemovitosti:
    Byt
  • Typ budovy:
    Cihlová
  • Dispozice:
    2+kk
  • Vlastnictví:
    OV
  • Podlaží:
    2
  • Podlahová plocha:
    56 m2
  • Stav objektu:
    Po rekonstrukci
  • Bezbariérový byt:
    Ano
  • Voda:
    dálkový vodovod
  • Topeni:
    ústřední plynové
  • Plyn:
    plynovod
  • Odpad:
    kanalizace
  • Komunikace:
    asfaltová
  • Bezbariérový přístup:
    Ano
  • Energetická náročnost:
    C - Úsporná
  • Podle vyhlášky:
    c. 78/2013 Sb.
  • Nabídky v okolí:
Lokalita: Fibichova , Chrudim III, Chrudim, okres Chrudim, Česká republika Fibichova, Chrudim III, Chrudim, okr. Chrudim

Kontakt




  • Objednání prohlídky a více informací
  •  
  • Poslat na e-mail
  •  

Zasílání odkazu na realitu emailem: