• Sledovat cenu
  •  

Zasílání upozornění emailem:

Pronájem bytu 2+kk, 56 m2 - Vyšenská, Český Krumlov

Cena: 15 700 Kč/měsíc
Stav:Volný
2+kk, 56 m2, cihlová, družstevní, 3. podlaží
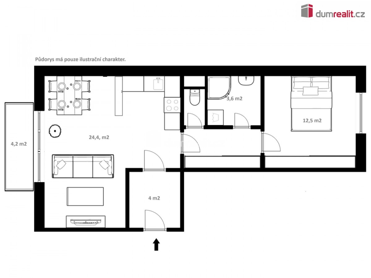
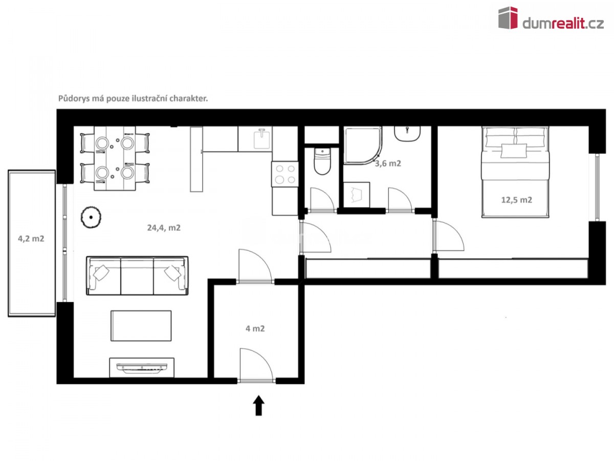
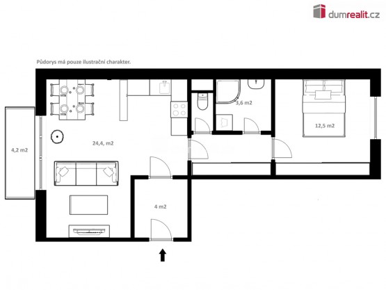
Popis: +popl. 2300 Kč, +elektřina. Kauce 30. 000, - , odměna RK 18. 000, - . . Dumrealit. cz Vám nabízí pronájem bytu 2+kk s balkonem, o 56 m², ve druhém patře patře třípatrové...ho zděného domu bez výtahu, v klidné části Českého Krumlova, ul. Vyšenská, sídliště Vyšný.

Nadstandardní byt prošel v nedávné době kompletní revitalizací a nabízí se k pronájmu bez vybavení/nábytku. Sestává ze zádveří, obýváku o 24, 4 m² s moderní kuchyňskou linkou s dostatkem prostoru pro jídelní stůl a s přístupem na balkon o cca 4, 2 m², úplně nové koupelny se sprchovým koutem, umyvadlem s místem pro pračku, chodby s vestavěnou skříní a ložnice o o cca 12, 5 m².

Dům je průběžně udržovaný, klidný. Bezproblémové parkování na veřejném parkovišti před domem. Zastávka MHD 258 m od domu.

Měsíční nájem činní 15. 700, - plus 2. 300, - jako zálohová platba na vodu, TUV a topení, s termínem platby v měsíci předcházejícím, plus elektřina na samostatnou smlouvu nájemníka s dodavatelem (E. ON). Kauce 30. 000, - , odměna RK za zprostředkování příležitosti uzavřít Smlouvu o nájmu 18. 000, - . Byt je vhodný spíše pro menší počet osob 1 - 3. Volné po dohodě Ev. číslo: 652845. Energetický štítek: B (74 kWh/m2/rok).
  • Vložení inzerátu:
    20.10.2025
  • Kód:
    3992433
  • Typ nemovitosti:
    Byt
  • Typ budovy:
    Cihlová
  • Dispozice:
    2+kk
  • Vlastnictví:
    Družstevní
  • Podlaží:
    3
  • Podlahová plocha:
    56 m2
  • Balkón:
    Ano
  • Sklep:
    Ano
  • Stav objektu:
    Velmi dobrý
  • Energetická náročnost:
    B - Velmi úsporná
  • Ukazatel náročnosti:
    74 kWh/m2
  • Nabídky v okolí:
  • Informace o obci:
    Obec Český Krumlov má 13377 obyvatel, z toho 9441 v produktivním věku.
    V obci se nachází pošta.
    V obci se nachází škola, popř. školka.
    V obci se nachází zdravotní zařízení.
    V obci je rozvod kanalizace.
    V obci je rozvod městské vody.
    V obci je rozvod plynu.
Lokalita: Vyšenská , Český Krumlov, okres Český Krumlov, Česká republika Vyšenská, Český Krumlov

Kontakt

Jiří Kejšar


Podobné nabídky v okolí


  • Objednání prohlídky a více informací
  •  
  • Poslat na e-mail
  •  

Zasílání odkazu na realitu emailem: