• Sledovat cenu
  •  

Zasílání upozornění emailem:

Pronájem bytu 2+kk, 54 m2 - Habrmannovo náměstí, Plzeň, okr. Plzeň-město (již není v nabídce)

Cena: 9 800 Kč/měsíc
Stav:archiv
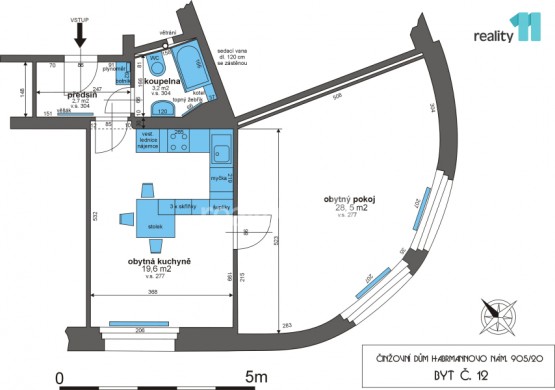
2+kk, 54 m2, cihlová, OV, 3. podlaží
Popis: Záloha na služby 530, - Kč/měsíc na osobu + plyn a elektřina, kauce 19600, - Kč, provize RK 9800, - Kč. . Reality 11 Vám zprostředkují pronájem atypického bytu 2+kk, 54... m², ve 2. patře rekonstruovaného cihlového domu na Doubravce. Prostorný byt s velkým portálovým pokojem (28, 5 m²) a obytnou kuchyní (19, 6 m²), orientovaný na jih a jihozápad, po kompletní rekonstrukci (2010), s nadstandardním vybavením - rohová kuchyňská linka s barovým pultem a jídelním stolem, vestavěné spotřebiče - plyn. varná deska, el. trouba, odsavač par, myčka nádobí a chladnička s mrazákem, vestavěná šatní skříň a botník v předsíni, zařízená koupelna s vanou, sociální zařízení WC a pračkou, plast. okna se žaluziemi a síty proti hmyzu, vlastní plynový kotel (vytápění, ohřev vody). Přípojka pro příjem kabelové TV a internetové připojeníu. K bytu možnost pronájmu zabezpečené kovové sklepní kóje.
Kvalitní bydlení v klidném nájemním domě na dobrém místě, s veškerým servisem správy domu, s občanskou vybaveností a MHD v blízkosti. Ihned k pronájmu. Ev. číslo: 25471. Energetický štítek: E (332 kWh/m2/rok).
  • Vložení inzerátu:
    14.6.2023
  • Kód:
    3624219
  • Typ nemovitosti:
    Byt
  • Typ budovy:
    Cihlová
  • Dispozice:
    2+kk
  • Vlastnictví:
    OV
  • Podlaží:
    3
  • Podlahová plocha:
    54 m2
  • Sklep:
    Ano
  • Stav objektu:
    Po rekonstrukci
  • Zařízený:
    Ano
  • Energetická náročnost:
    E - Nehospodárná
  • Ukazatel náročnosti:
    332 kWh/m2
  • Nabídky v okolí:
  • Informace o obci:
    Obec Plzeň má 168808 obyvatel, z toho 116966 v produktivním věku.
    V obci se nachází pošta.
    V obci se nachází škola, popř. školka.
    V obci se nachází zdravotní zařízení.
    V obci je rozvod kanalizace.
    V obci je rozvod městské vody.
    V obci je rozvod plynu.

Podobné nabídky v okolí

Lokalita: Habrmannovo náměstí , Plzeň, okres Plzeň-město, Česká republika Habrmannovo náměstí, Plzeň, okr. Plzeň-město