• Sledovat cenu
  •  

Zasílání upozornění emailem:

Pronájem bytu 2+kk, 52 m2 - Xaveriova 1, Praha

Cena: 14 000 Kč/měsíc
Stav:Volný
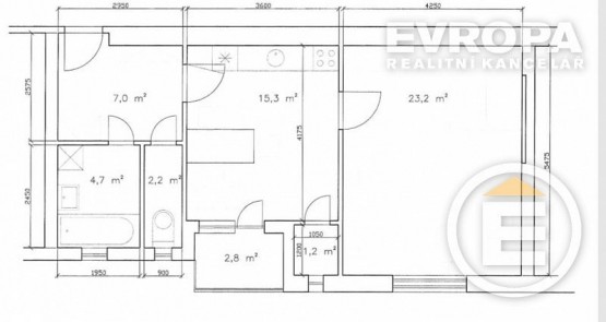
2+kk, 52 m2, cihlová, OV, 3. podlaží
Popis: Nabízíme k pronájmu, velmi pěkný a slunný byt, který je po kompletní rekonstrukci, skládá se z prostorné předsíně s vestavěnou skříní, se vstupem do obytných místností, dva moc hezké pokoje orientované na jižní stranu, ...nová kuchyňská linka je umístěna v menším pokoji 16 m2 a je vybavená sporákem, plynovou varnou deskou, lednicí s mrazákem, myčkou nádobí, z pokoje je výstup na balkon s příjemným výhledem. Dále velice prostorný obývací pokoj 23 m2, úsporné vytápění - WAW, v koupelně je vana, el. bojler, toaleta je samostatná. V obýváku a předsíni vestavěné skříně, vše 3 roky po rekonstrukci. Na podlahách položená dlažba a parketová podlaha. V místě perfektní občanská obslužnost, majitel preferuje klidné nájemníky ideálně 2 osoby a bez zvířat (psů). K nastěhování je volný od 16. dubna 2018. Byt se nachází ve vilové čtvrti v cihlovém domě se zahradou na Malvazinkách, nachází se ve 3 nadzemním podlaží, dům je postavený ve svahu přístup je z obou stran, ulice Xaveriová má hlavní vchod a k bytu vede jedno schodiště, z jižní strany je výhled do údolí a je možné dojít pěšky na metro Radlická. V případě zájmu o prohlídku kontaktujte makléře. Neplatíte provizi RK.
  • Vložení inzerátu:
    28.3.2018
  • Kód:
    42032
  • K dispozici od:
    0.0.0
  • Typ nemovitosti:
    Byt
  • Typ budovy:
    Cihlová
  • Dispozice:
    2+kk
  • Vlastnictví:
    OV
  • Podlaží:
    3
  • Podlahová plocha:
    52 m2
  • Balkón:
    2 m2
  • Stav objektu:
    Po rekonstrukci
  • Umístění objektu:
    Klidná část
  • Telekomunikace:
    Telefon
  • Topeni:
    lokální plynové
  • Odpad:
    kanalizace
  • Energetická náročnost:
    C - Úsporná
  • Nabídky v okolí:
  • Informace o obci:
    Obec Praha má 1257158 obyvatel, z toho 889974 v produktivním věku.
    V obci se nachází pošta.
    V obci se nachází škola, popř. školka.
    V obci se nachází zdravotní zařízení.
    V obci je rozvod kanalizace.
    V obci je rozvod městské vody.
    V obci je rozvod plynu.
Lokalita: Xaveriova 1, Praha, Česká republika Xaveriova 1, Praha


Podobné nabídky v okolí


Volná pracovní místa ExpertPrace.cz
  • Objednání prohlídky a více informací
  •  
  • Poslat na e-mail
  •  

Zasílání odkazu na realitu emailem: