Pronájem bytu 2+kk, 51 m2 - Křižíkova, Praha 8, Praha (již není v nabídce)
Cena:
25 000 Kč/měsíc
Stav:archiv
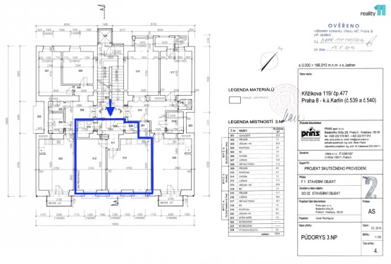
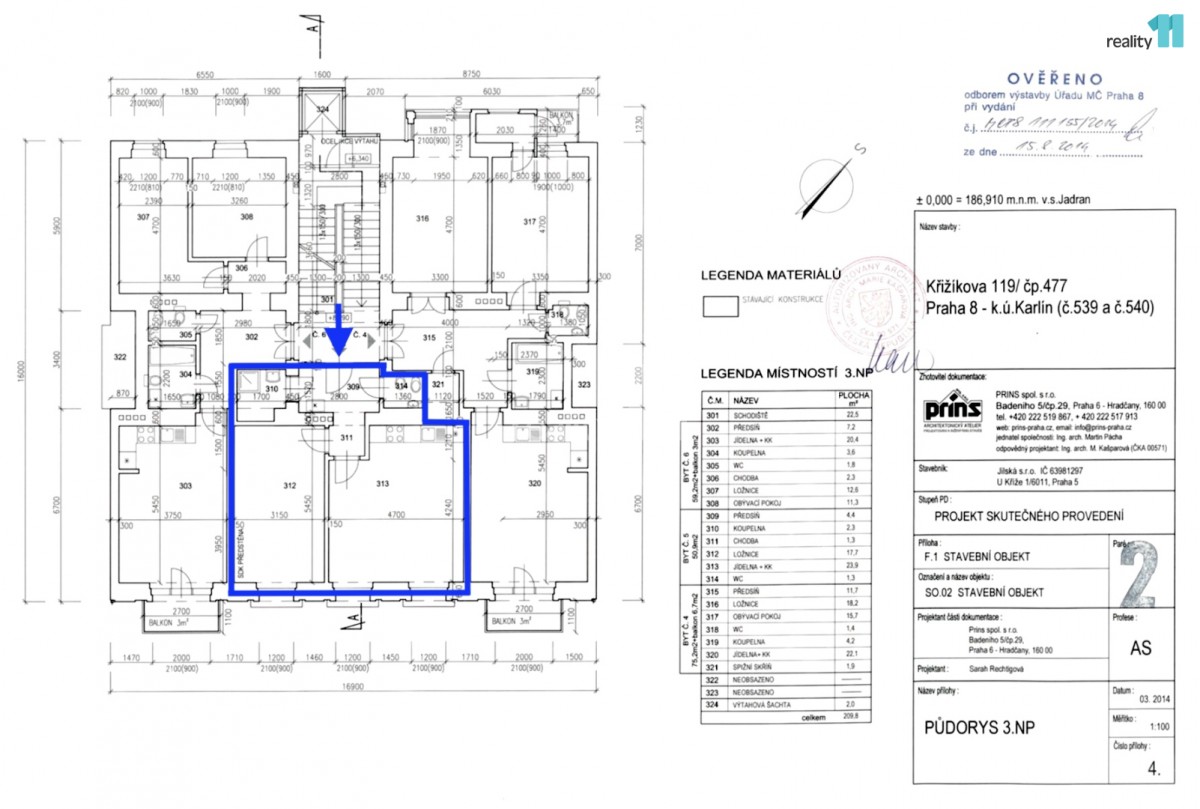
2+kk, 51 m2, cihlová, OV, 2. podlaží
Popis:
+ zálohy na energie a služby 2. 000, - Kč/měsíc/osoba, elektřina převedena na nájemce, kauce, provize. Reality 11 Vám zprostředkují pronájem slunného, zařízeného, bytu 2+kk...>, situovaného ve 2. patře zrekonstruovaného činžovního domu, v zelené části Karlína, pouze 5 minut chůze od stanice metra B - Křižíkova.
Byt o obytné ploše 51 m² je dispozičně rozdělen na obývací pokoj s kuchyňským koutem (lednice, myčka, sklokeramická varná deska, trouba), rozkládací pohovkou do L, jídelním stolem se židlemi. Dále prostorná ložnice ( cca 18 m², dvoupostel, šatní skříň, komoda), koupelna se sprchovým koutem (pračka) a samostatná toaleta s bidetem. Na podlahách dlažba a plovoucí podlaha. Vlastní plynový kotel.
Dům je postaven v klidné a příjemné lokalitě, s mnoha restauracemi a kavárnami v okolí, se snadnou dostupností do centra. Rovněž mnoho obchodů zaměřených na kvalitní suroviny a zdravou stravu, pro sportovce k dispozici nedaleký park Vítkov. Volné k nastěhování v průběhu dubna 2026.
Nájemné 25. 000, - Kč/měsíc + poplatky za energie a služby v domě 2. 000, - Kč/měsíc/osoba + elektřina a plyn převedena na nájemce, kauce 29. 000, - Kč, provize 25. 000, - Kč Ev. číslo: 28155. Energetický štítek: C (124 kWh/m2/rok).
- Vložení inzerátu:
27.3.2026
- Kód:
4178575
- Typ nemovitosti:
Byt
- Typ budovy:
Cihlová
- Dispozice:
2+kk
- Vlastnictví:
OV
- Podlaží:
2
- Podlahová plocha:
51 m2
- Stav objektu:
Velmi dobrý
- Zařízený:
Ano
- Energetická náročnost:
C - Úsporná
- Ukazatel náročnosti:
124 kWh/m2
- Nabídky v okolí:
Lokalita:
Křižíkova , Praha 8, Praha, Česká republika
Křižíkova, Praha 8, Praha