• Sledovat cenu
  •  

Zasílání upozornění emailem:

Pronájem bytu 2+kk, 51 m2 - Na Horizontu 477, Králův Dvůr, okr. Beroun (již není v nabídce)

Cena: 13 500 Kč/měsíc
Stav:archiv
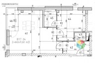
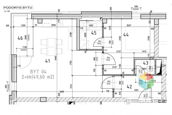
2+kk, 51 m2, OV, 2. podlaží
Popis: Nabízíme Vám k pronájmu byt 2+kk o výměře 49, 6 m2 s lodžií. Nachází se v ulici Na Horizontu v Králově Dvoře.

Obývací pokoj je průchozí, kuchyňská linka vybavena e...l. varnou deskou, troubou a digestoří. Díky velkým oknům je byt příjemně světlý a poskytuje moc hezký výhled do okolí. Západní sluníčko si můžete vychutnat na lodžii, na kterou vstoupíte z kuchyně francouzským oknem. Z ložnice se dostanete do koupelny s vanou, sociální zařízení WC je oddělené, přístupné z chodby. Pro ukládání věcí Vám poslouží dvě velké vestavné skříně - jedna v ložnici a druhá v chodbě. Okna jsou plastová, podlahy plovoucí. Parkování je možné v ulici před domem. K bytu náleží sklepní kóje. Můžete také využít společnou kolárnu. V domě je výtah.

Na autobusovou zastávku U zámku se dostanete za pět minut, odtamtud přímými spoji na Nové Butovice či Zličín.

Byt je možno pronajmout včetně vybavení na fotkách, či prázdný.

Byt je vhodný pro 1 - 2 osoby, nekuřáky, bez zvířat.

Byt bude volný od poloviny února, prohlídku je možné domluvit již nyní.

Náklady spojené s pronájmem bytu:
měsíční nájemné 13. 500, -
kauce 27. 000, -
provize RK 16. 335, -
záloha na služby 3500, -
Elektřina bude převedena na nájemce
  • Vložení inzerátu:
    31.1.2024
  • Kód:
    5756
  • K dispozici od:
    0.0.0
  • Typ nemovitosti:
    Byt
  • Dispozice:
    2+kk
  • Vlastnictví:
    OV
  • Podlaží:
    2
  • Podlahová plocha:
    51 m2
  • Stav objektu:
    Velmi dobrý
  • Rok výstavby:
    2007
  • Rok kolaudace:
    2007
  • Umístění objektu:
    Klidná část
  • Plyn:
    plynovod
  • Odpad:
    kanalizace
  • Energetická náročnost:
    B - Velmi úsporná
  • Nabídky v okolí:
  • Informace o obci:
    Obec Králův Dvůr má 7036 obyvatel, z toho 5020 v produktivním věku.
    V obci se nachází pošta.
    V obci se nachází škola, popř. školka.
    V obci se nachází zdravotní zařízení.
    V obci je rozvod kanalizace.
    V obci je rozvod městské vody.
    V obci je rozvod plynu.

Podobné nabídky v okolí

Lokalita: Na Horizontu 477, Králův Dvůr, okres Beroun, Česká republika Na Horizontu 477, Králův Dvůr, okr. Beroun