• Sledovat cenu
  •  

Zasílání upozornění emailem:

Pronájem bytu 2+kk, 51 m2 - Komárovská, Brno, okr. Brno-město

Cena: 24 900 Kč/měsíc
Stav:Volný
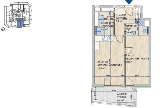
2+kk, 51 m2, skeletová, OV, 8. podlaží
Popis: Hledáte reprezentativní prostor pro své podnikání, práci nebo kombinaci s bydlením v atraktivní lokalitě s dech beroucím výhledem na dominanty Brna? Nabízím k pronájmu ateliér 2+kk...br> o podlahové ploše 51, 8 m2 s terasou o velikosti 9, 5 m2, umístěnou v 8. nadzemním podlaží novostavby Allrisk MERIDIEM na ulici Komárovská.

DISPOZICE:
- hlavní místnost s kuchyňským koutem (19, 6 m2)
- pokoj (14, 9 m2)
- chodba (6, 9 m2)
- koupelna se sprchovým koutem (4, 9 m2)
- samostatné sociální zařízení WC (3, 4 m2)

KLÍČOV (osobní vlastnictví)É VÝHODY:
- možnost propojení bydlení s podnikáním – odpočet DPH
- novostavba s vysokým standardem provedení
- francouzská okna zajišťující dostatek denního světla
- samostatná koupelna a sociální zařízení WC
- terasa s výhledem na dominanty Brna

VYBAVENÍ:
- klimatizace
- venkovní elektricky ovládané žaluzie
- velkoformátové obklady a dlažba v koupelně a na toaletě
- příprava na chytrou domácnost LOXONE

LOKALITA:
- výborná dostupnost MHD, centrum Brna za pár minut
- rekreační možnosti: cyklostezka, biotop, sportovní centrum, parky
- kompletní občanská vybavenost v docházkové vzdálenosti

ZAUJALA VÁS TATO NABÍDKA?
Neváhejte mě kontaktovat prostřednictvím formuláře u této nabídky – ráda Vám poskytnu veškeré informace a zodpovím Vaše dotazy, doplním všechny užitečné informace a zajistím osobní prohlídku. Společně projdeme vše důležité, abyste si mohli udělat jasnou představu, zda je tato nemovitost tou pravou volbou právě pro Vás.

Věřím, že Vás tato jednotka zaujme, a pokud by přece jen nesplňovala všechna Vaše očekávání, ráda Vám představím i další vhodné možnosti k pronájmu či koupi v rámci objektu.


K NASTĚHOV (osobní vlastnictví)ÁNÍ: ihned
KATEGORIE: pronájem, novostavba, nebytová jednotka / ateliér
LOKALITA: Brno – Komárovská
UŽITNÁ PLOCHA: 61, 3 m2 (včetně terasy 9, 5 m2)
VYBAVENÍ: možnost pronájmu kompletně vybaveného bytu + 7. 000, - Kč/měsíčně
UMÍSTĚNÍ JEDNOTKY: 8. nadzemní podlaží
ORIENTACE: západní – prosvětlený prostor, západy slunce, výhled na Špilberk a Petrov
PARKOV (osobní vlastnictví)ÁNÍ: možnost pronájmu jednoho garážového stání, které se nachází přímo v domě, v 1. podzemním podlaží – pohodlný a bezpečný přístup výtahem až k jednotce.
SKLEP: možnost pronájmu sklepní kóje, která se nachází přímo u garážového stání Pokud jste si nevybrali z uveřejněné nabídky, zadejte nám prosím Vaši poptávku a my se pokusíme najít odpovídající nemovitost.
  • Vložení inzerátu:
    6.2.2026
  • Kód:
    A1.8001_pronájem
  • K dispozici od:
    0.0.0
  • Typ nemovitosti:
    Byt
  • Typ budovy:
    Skeletová
  • Dispozice:
    2+kk
  • Vlastnictví:
    OV
  • Podlaží:
    8
  • Podlahová plocha:
    51 m2
  • Terasa:
    9 m2
  • Stav objektu:
    Novostavba
  • Rok výstavby:
    2025
  • Rok kolaudace:
    2025
  • Umístění objektu:
    Centrum
  • Telekomunikace:
    Internet
  • Voda:
    dálkový vodovod
  • Elektřina:
    230 V
  • Doprava:
    silnice, dálnice, MHD, autobus, vlak
  • Topeni:
    ústřední dálkové
  • Odpad:
    kanalizace
  • Komunikace:
    asfaltová
  • Energetická náročnost:
    B - Velmi úsporná
  • Podle vyhlášky:
    c. 78/2013 Sb.
  • Ukazatel náročnosti:
    86 kWh/m2
  • Nabídky v okolí:
  • Informace o obci:
    Obec Brno má 371371 obyvatel, z toho 256490 v produktivním věku.
    V obci se nachází pošta.
    V obci se nachází škola, popř. školka.
    V obci se nachází zdravotní zařízení.
    V obci je rozvod kanalizace.
    V obci je rozvod městské vody.
    V obci je rozvod plynu.
Lokalita: Komárovská , Brno, okres Brno-město, Česká republika Komárovská, Brno, okr. Brno-město



Volná pracovní místa ExpertPrace.cz
  • Objednání prohlídky a více informací
  •  
  • Poslat na e-mail
  •  

Zasílání odkazu na realitu emailem: