Pronájem bytu 2+kk, 50 m2 - Zakšínská, Praha 9, Praha (již není v nabídce)
Cena:
13 900 Kč/měsíc
Stav:archiv
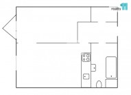
2+kk, 50 m2, cihlová, OV, 6. podlaží
Popis:
+ poplatky 3. 500 Kč + elektřina; kauce; provize. Reality 11 Vám zprostředkují pronájem pěkného bytu 2+kk, s balkónem, o celkové ploše 50 m², v šestém podlaží novostavby, c...ca 5 minut chůze od stanice metra Střížkov. Byt je z větší části zařízený (kuchyňská linka s varnou deskou a troubou, myčka nádobí, chladnička s mrazákem, rozkládací pohovka, manželská postel, vestavěná skříň, stůl, židle. . . ), plovoucí podlahy a dlažba. Prostor pro spaní je oddělen stěnou od obývací části bytu. Toaleta společná s koupelnou (vana). Přímo v bytě je komora (šatna - cca 3 m²). Parkovat lze na parkovacím stání v suterénu domu ( + příplatek 1. 000 Kč/měsíc). Nájemné 13. 900 Kč + zúčtovatelné zálohy na služby 3. 500 Kč + elektřina převedena na nájemce; kauce nájemné včetně služeb; provize. Maximálně pro 2 osoby, bez domácích zvířat. K nastěhování od 1. 1. 2022, prohlídky možné po domluvě už nyní. Ev. číslo: 10585. Energetický štítek: B (106 kWh/m2/rok).
- Vložení inzerátu:
7.12.2021
- Kód:
3266693
- Typ nemovitosti:
Byt
- Typ budovy:
Cihlová
- Dispozice:
2+kk
- Vlastnictví:
OV
- Podlaží:
6
- Podlahová plocha:
50 m2
- Balkón:
Ano
- Stav objektu:
Novostavba
- Zařízený:
Ano
- Energetická náročnost:
B - Velmi úsporná
- Ukazatel náročnosti:
106 kWh/m2
- Nabídky v okolí:
Lokalita:
Zakšínská , Praha 9, Praha, Česká republika
Zakšínská, Praha 9, Praha