• Sledovat cenu
  •  

Zasílání upozornění emailem:

Pronájem bytu 2+kk, 50 m2 - Cimburkova, Praha 3, Žižkov, Praha (již není v nabídce)

Cena: 17 500 Kč/měsíc
Stav:archiv
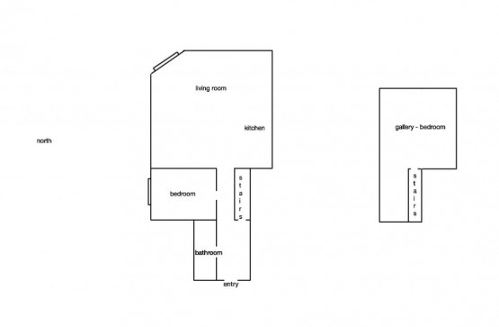
2+kk, 50 m2, cihlová, OV, 6. podlaží
Popis: Krásný zařízený byt 2+kk k pronájmu o celkové rozloze 50 m2 se nachází v 5. patře cihlového domu včetně výtahu v ulici Cimburkova. Byt sestává ze dvou ložnic, obývac...ího pokoje s kuchyňským koutem, koupelny a toalety. Obývací pokoj je zařízen pohovkou, konferenčním stolkem, komodou a jídelním stolem se židlemi. Kuchyň je vybavena lednicí, pračkou a plynovým sporákem. V koupelně naleznete vanu, sociální zařízení WC a bidet. Byt se nachází nedaleko centra Prahy. V okolí veškerá občanská vybavenost: parky, restaurace, lékárna, základní škola, gymnázium a obchodní akademie.

Podobné nabídky v okolí

Lokalita: Cimburkova , Praha 3, Žižkov, Praha, Česká republika Cimburkova, Praha 3, Žižkov, Praha