Pronájem bytu 2+kk, 50 m2 - Tolstého 732, Praha 10, Vršovice, Praha (již není v nabídce)
Cena:
14 500 Kč/měsíc
Stav:archiv
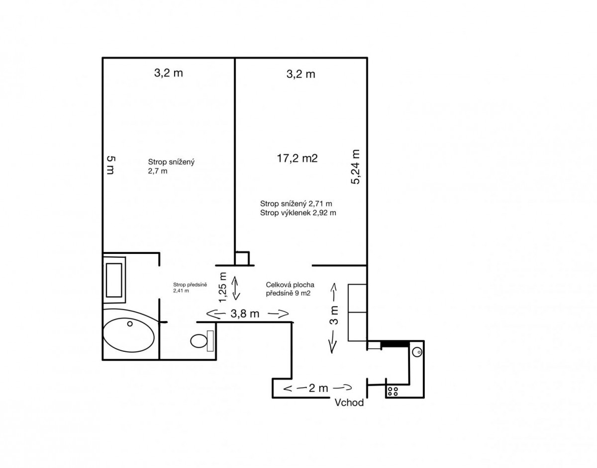
2+kk, 50 m2, cihlová, družstevní, 2. podlaží
Popis:
Nabízíme pronájem prostorného nezařízeného bytu s dispozicí 2+kk, o celkové výměře 50 m2, v Praze 10 - Vršovicích, ulice Tolstého.
Byt má dva samostatné neprůch...ozí pokoje o velikosti 17 m2 a 16 m2, kuchyňský kout přístupný z předsíně, předsíň s věšákovou stěnou, koupelna s rohovou vanou. Vybavení bytu tvoří kuchyňská linka se sklokeramickou deskou, vestavnou troubou, kombinovanou lednicí s mrazničkou a pračka.
Nachází se v 1. patře včetně výtahu, pokoje jsou orientované do klidné ulice na západ.
Byt je po částečné rekonstrukci, zrenovované parketová podlaha, vymalováno. Dům je po rekonstrukci vnitřních prostor, nové štuky, omítky, výtah, zrenovované schodiště atd.
Výborná občanská vybavenost v místě, TESCO Eden 5 min. , v místě obchody, kavárny. Dům se nachází v klidné ulici nad parkem náměstím Svatopluka Čecha, blízko park Grébovka. Tramvají do centra 15 min.
Energetickou třídu G uvádíme z formálních důvodů, po obdržení průkazu energetické náročnosti budovy bude uvedena skutečná hodnota.
- Vložení inzerátu:
16.5.2022
- Kód:
0850
- Typ nemovitosti:
Byt
- Typ budovy:
Cihlová
- Dispozice:
2+kk
- Vlastnictví:
Družstevní
- Podlaží:
2
- Podlahová plocha:
50 m2
- Stav objektu:
Po rekonstrukci
- Bezbariérový byt:
Ano
- Bezbariérový přístup:
Ano
- Nabídky v okolí: