• Sledovat cenu
  •  

Zasílání upozornění emailem:

Pronájem bytu 2+kk, 48 m2 - Nádvorní 1206, Liberec (již není v nabídce)

Cena: 7 900 Kč/měsíc
Stav:archiv
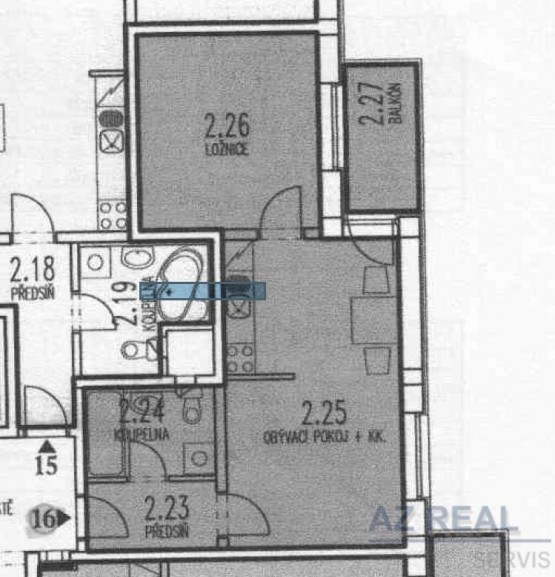
2+kk, 48 m2, cihlová, družstevní, 2. podlaží
Popis: Exkluzivně nabízíme podnájem bytu v bytovém domě postaveném v r. 2011 na okraji sídliště Rochlice. Dispozice: předsíň, koupelna s sociální zařízení WC, obývací pokoj se vstupem na balkón, ložnice, sklepní kóje. Byt má... standardní vybavení – sociální zařízení WC, vana, umyvadlo, baterie, kuchyňská linka s dřezem, s digestoří, samostatným sporákem a lednicí. Dveře lamino s obložkovou zárubní. Na podlaze plovoucí laminátová podlaha. Žaluzie ve všech oknech a balkónových dveřích. Topení je ústřední s deskovými radiátory. Balkón či terasa s dlažbou s pevným zábradlím. Bytový dům je zděný, zateplený. K bytu je vyhrazeno jedno parkovací stání u domu a sklepní kóje. Veškerá občanská vybavenost v místě včetně MHD. Poptáváme jednotlivce či pár a pejsek či kočička nejsou překážkou. Ihned k dispozici.
  • Vložení inzerátu:
    8.10.2019
  • Kód:
    0235
  • K dispozici od:
    8.10.2019
  • Typ nemovitosti:
    Byt
  • Typ budovy:
    Cihlová
  • Dispozice:
    2+kk
  • Vlastnictví:
    Družstevní
  • Podlaží:
    2
  • Podlahová plocha:
    48 m2
  • Balkón:
    3 m2
  • Sklep:
    3 m2
  • Stav objektu:
    Novostavba
  • Telekomunikace:
    Internet, Kabelové rozvody
  • Voda:
    dálkový vodovod
  • Doprava:
    MHD
  • Topeni:
    ústřední dálkové
  • Odpad:
    kanalizace
  • Komunikace:
    asfaltová
  • Energetická náročnost:
    G - Mimořádne nehospodárná
  • Nabídky v okolí:
  • Informace o obci:
    Obec Liberec má 101865 obyvatel, z toho 71331 v produktivním věku.
    V obci se nachází pošta.
    V obci se nachází škola, popř. školka.
    V obci se nachází zdravotní zařízení.
    V obci je rozvod kanalizace.
    V obci je rozvod městské vody.
    V obci je rozvod plynu.

Podobné nabídky v okolí

Lokalita: Nádvorní 1206, Liberec, okres Liberec, Česká republika Nádvorní 1206, Liberec