• Sledovat cenu
  •  

Zasílání upozornění emailem:

Pronájem bytu 2+kk, 47 m2 - Východní 562, Pardubičky, Pardubice, okr. Pardubice (již není v nabídce)

Cena: 16 000 Kč/měsíc
Stav:archiv
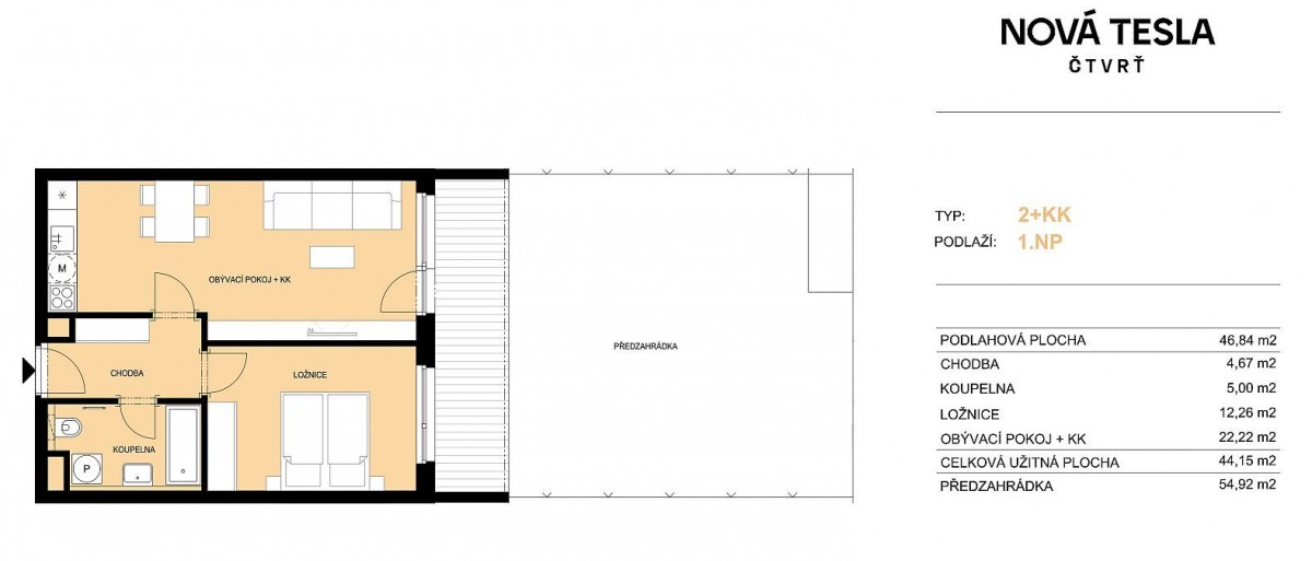
2+kk, 47 m2, cihlová, OV, 1. podlaží
Popis: Dobrý den, hledáte nový byt 2+kk k pronájmu, který bude splňovat atributy komfortu, jako je vnitřní garážové stání, úložný prostor (sklep), vlastní terasa a předzahrádka? A ...to vše v sousedství supermarketu, ale také nedaleko parku? Nevěříte? Dovolte mi, abych Vám naši novou nabídku blíže představil.

Jedná se o pronájem nového bytu (tzv. voňavka) 2+kk o celkové ploše 47 m2, který se nachází v 1. NP (první nadzemní patro), ke kterému náleží terasa a předzahrádka o výměře 55 m2. Byt se nachází v projektu Nová Tesla, který poskytuje bydlení v dosahu služeb (například supermarket se nachází pár metrů od bytu), ale v blízkosti zeleně jako je park Vinice.

Jak již bylo zmíněno k bytu patří vnitřní garážové stání a úložný prostor (sklep). Součástí vybavení bytu je kuchyňská linka včetně myčky nádobí, ledničky, pečící trouby, varné desky a odsavače par. Byt je volný ihned.

Výše měsíčního nájmu tohoto komfortního bytu je 16. 000 Kč včetně parkovacího stání + zálohy na energie 3. 500 Kč. Peněžitá jistota (vratná kauce) je ve výši 32. 000 Kč. Provize RK činí 16. 000 Kč.

Nebojte se být nároční i v případě pronájmu.

Děkuji za pozornost a budu se těšit na komunikaci s Vámi.

Václav Růžička, realitní specialista.

Pronajímatel si vyhrazuje právo vybrat nájemce na základě jím zvolených kritérií.
  • Vložení inzerátu:
    2.12.2023
  • Kód:
    XA-424
  • Typ nemovitosti:
    Byt
  • Typ budovy:
    Cihlová
  • Dispozice:
    2+kk
  • Vlastnictví:
    OV
  • Podlaží:
    1
  • Podlahová plocha:
    47 m2
  • Plocha parcely:
    47 m2
  • Sklep:
    Ano
  • Stav objektu:
    Novostavba
  • Bezbariérový byt:
    Ano
  • Voda:
    dálkový vodovod
  • Doprava:
    MHD
  • Topeni:
    ústřední dálkové
  • Plyn:
    plynovod
  • Odpad:
    kanalizace
  • Komunikace:
    asfaltová
  • Bezbariérový přístup:
    Ano
  • Energetická náročnost:
    B - Velmi úsporná
  • Nabídky v okolí:

Podobné nabídky v okolí

Lokalita: Východní 562, Pardubičky, Pardubice, okres Pardubice, Česká republika Východní 562, Pardubičky, Pardubice, okr. Pardubice