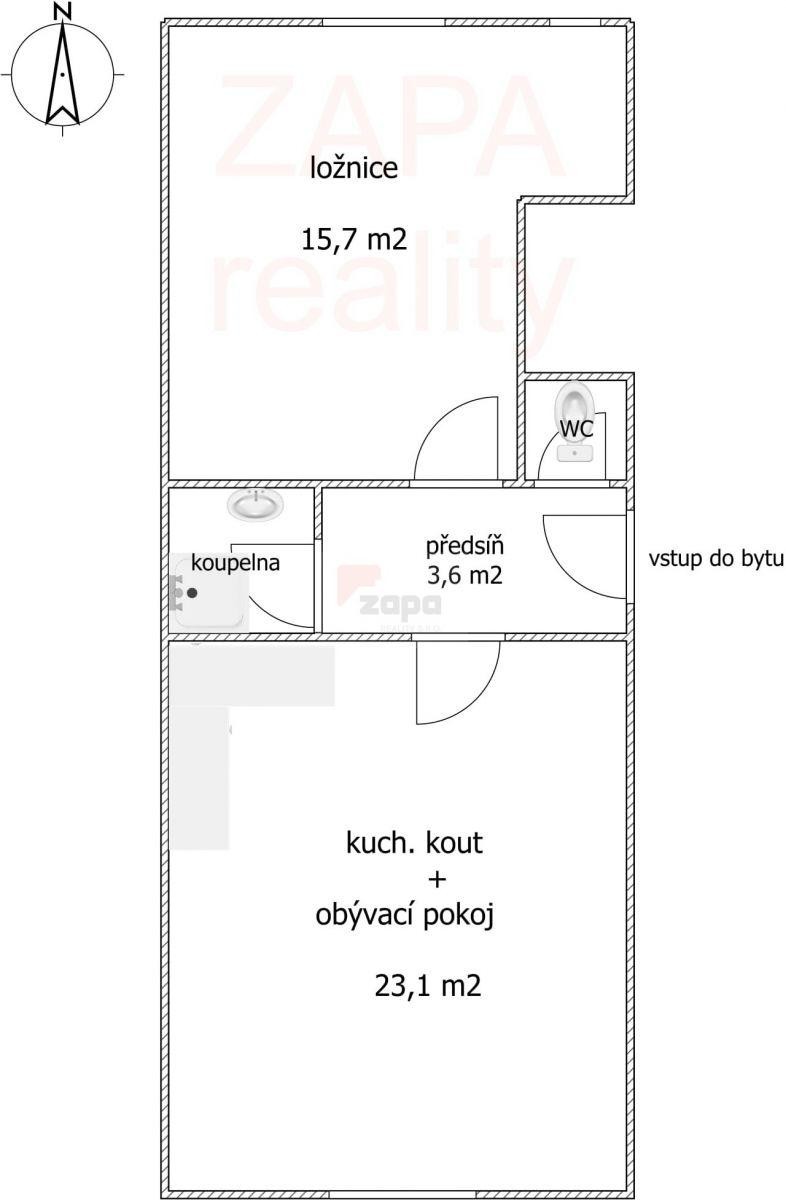
Pronájem bytu 2+kk, 46 m2 - Jaselská 244, Praha 6, Bubeneč, Praha (již není v nabídce)
            
            
                
        Cena:
                        16 000 Kč/měsíc
        
              Stav:archiv
        
         
          
          
                2+kk, 46 m2, cihlová, OV, 3. podlaží          
        
        Popis:
        
                                Exkluzivně nabízíme k pronájmu zrekonstruovaný byt 2+kk o velikosti 46 m2 ve 2.  patře cihlového domu bez výtahu v ulici Jaselská na Praze 6  Bubeneč.  Byt je po kompl...etní rekonstrukci,  nezařízený,  z vybavení nová kuchyňská linka včetně vestavěných spotřebičů (lednice s mrazákem,  myčka,  pračka).  Na podlahách je plovoucí podlaha nebo dlažba,  v koupelně sprchový kout,  sociální zařízení WC oddělené,   topení a ohřev vody zajišťuje vlastní plynový kotel.  V koupelně budou dokončeny drobné estetické úpravy tech.  vybavení kotle,  ložnice bude bez dvoulůžka (na fotografii).  Okna obývacího pokoje jsou orientovaná na jih směrem do zeleně do klidné ulice,  okna z ložnice do klidného vnitrobloku na severní stranu.  Lze využívat společný balkon na mezipatře domu (vždy pro 2 byty) a část společného dvoru ve  vnitrobloku domu.  Byt se nachází v klidné části Bubenče v blízkosti stanice metra trasy A Hradčanská  (cca 200m) nebo tramvajové a autobusové zastávky,  výborné spojení na letiště Václava Havla.  V blízkosti se nachází park Letná nebo Stromovka pro kulturní či relaxační vyžití,  v okolí domu se nachází spoustu obchůdků,  restaurací a kaváren,  nedaleko komplex vysokých škol.  Parkování je možné před domem v modré zóně.  Byt je ihned volný,  ideálně pro max 2 osoby,  nekuřáky,  malý pes navadí.  Měsíční nájemné činí 16. 000,  - Kč+ služby 950,  - Kč/měs. /1os+vlastní spotřeba elektřiny a plynu cca 1700,  - Kč + internetové připojení 399,  - Kč.  Při podpisu smlouvy je třeba uhradit 1.  nájemné včetně služeb a poplatků,  kauci ve výši 19. 000,  - Kč a provizi pro RK ve výši 16. 000,  - Kč.   Prohlídka nemovitosti je možná po předchozí dohodě,  od bytu máme klíče.