Pronájem bytu 2+kk, 45 m2 - Rejskova, Praha 2, Vinohrady, Praha (již není v nabídce)
2+kk, 45 m2, cihlová, OV, 3. podlaží
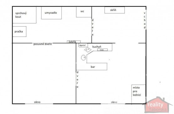
Popis:
Exkluzivně nabízím k dlouhodobému pronájmu slunný byt 2+kk v žádané lokalitě Vinohrad. Byt o výměře 45 m2 se nachází ve 2. patře cihlového domu bez výtahu. Dispozič...ně velice dobře řešený.
Ložnice, kuchyň + obývák, koupelna se sprchovým koutem a sociální zařízení WC. V obou místnostech parketová podlaha, v koupelně a chodbě dlažba.
V bytě se nachází:
kuchyň + obývák, kuchyňská linka, bar, + 3 barové židle, sklokeramický dvouvařič, horkovzdušná trouba, digestoř, mikrovlnná trouba, lednice, varná konev, na podlaze parketová podlaha, okno do vnitrobloku.
Ložnice na podlaze parketová podlaha, okno do vnitrobloku.
Chodba 2 x skříň + vestavěné skříně.
Koupelna sprchový kout, pračka, topný žebřík, sociální zařízení WC, podlahové vytápění, koupelnová skříňka.
Plynový kotel na ohřev vody i vytápění ovládané termostatem.
Sklepní kóje.
Cena nájmu 14500, - (+poplatky 2750, - ) + při podpisu nájemní smlouvy kauce ve výši 2 nájmů + poplatek RK.
Zaveden internetové připojení UPC, možnost převedení na nájemníka, 392, - /měsíc.
V blízkém okolí zeleň - park Folimanka. Výborná dostupnost do centra, v blízkosti cca 100m tram zastávka, 3 min od metra I. P. Pavlova. Veškerá občanská vybavenost v bezprostřední blízkosti.
- Vložení inzerátu:
5.2.2019
- Kód:
856/2245
- Typ nemovitosti:
Byt
- Typ budovy:
Cihlová
- Dispozice:
2+kk
- Vlastnictví:
OV
- Podlaží:
3
- Podlahová plocha:
45 m2
- Sklep:
Ano
- Stav objektu:
Velmi dobrý
- Bezbariérový byt:
Ano
- Telekomunikace:
Internet
- Voda:
dálkový vodovod
- Elektřina:
230 V
- Doprava:
vlak, MHD, autobus
- Topeni:
ústřední plynové
- Plyn:
plynovod
- Odpad:
kanalizace
- Bezbariérový přístup:
Ano
- Nabídky v okolí: