• Sledovat cenu
  •  

Zasílání upozornění emailem:

Pronájem bytu 2+kk, 39 m2 - Kojetická, Neratovice, okr. Mělník (již není v nabídce)

Cena: 15 900 Kč/měsíc
Stav:archiv
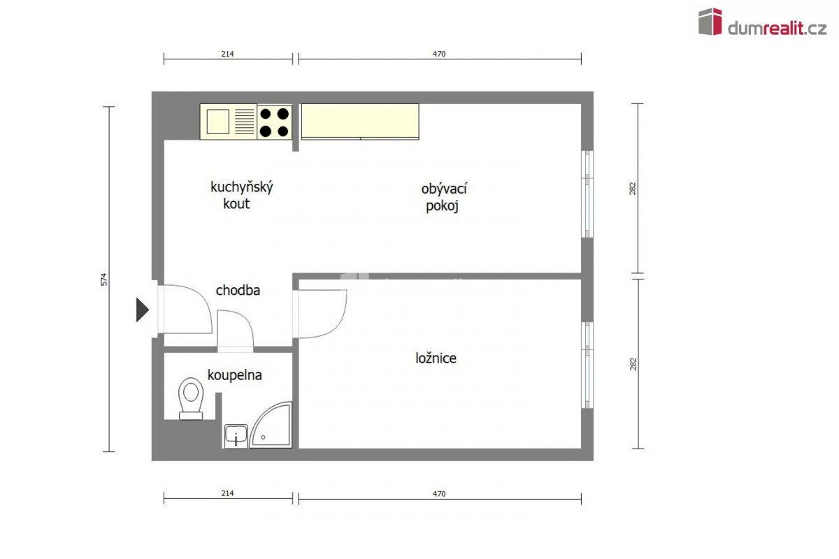
2+kk, 39 m2, panelová, družstevní, 7. podlaží
Popis: Dumrealit. cz Vám nabízí pronájem bytu o dispozici 2+kk s užitnou plochou 39m², v VII. nadzemním podlaží domu v Neratovicích, ul. Kojetická. Byt je čistý, udržovaný, podlahy... má pokryté koberci v obytných místnostech, dlažbu v koupelně. Má plastová okna opatřená žaluziemi, z části je vybavený nábytkem. Byt má koupelnu se sprchovacím koutem, umývadlem a sociální zařízení WC. V kuchyňském koutu je linka opatřená elektrickým sporákem, dřesem a digestoří. K příslušenství bytu patří komora ve stejném patře. Byt je vhodný pro jednoho nájemníka nebo pro klidný, pracující pár (s max. jedním dítětem) bez exekucí a insolvencí, nezamořující ovzduší svého příbytku smogem z cigaret, neobtěžující sousedy chovem domácího zvířectva (držet menší plemeno je možné po dohodě s majitelem bytu). Byt je k dispozici okamžitě. Nájemné činí 15. 900, - Kč, včetně záloh na služby (V částce za služby je zahrnuto: odběr tepla, TV, SV+stočné, společná elektrika, výtahy, úklid (dle výpočtového listu družstva). Spotřebu elektrické energie a internetové připojení si podnájemník zajistí vlastní smlouvou s příslušným dodavatelem. Kauce a provize RK je ve výši jednoho nájmu. Je vítán nájemník s představou dlouhodobého nájmu, ochotného chovat se k pronajatému bytu a vybavení jako k vlastnímu. Parkování je možné na ulici u domu nebo na parkovištích v okolí domu. V souladu s platným zákonem je nemovitost dočasně, do předložení Průkazu energetické náročnosti, zařazena do energetické třídy G. V případě zájmu o pronájem nebo více informací k uvedené nemovitosti neváhejte kontaktovat makléře RK. Ev. číslo: 651007. Energetický štítek: G
  • Vložení inzerátu:
    4.5.2025
  • Kód:
    3981840
  • Typ nemovitosti:
    Byt
  • Typ budovy:
    Panelová
  • Dispozice:
    2+kk
  • Vlastnictví:
    Družstevní
  • Podlaží:
    7
  • Podlahová plocha:
    39 m2
  • Sklep:
    Ano
  • Stav objektu:
    Dobrý
  • Energetická náročnost:
    G - Mimořádne nehospodárná
  • Nabídky v okolí:
  • Informace o obci:
    Obec Neratovice má 16414 obyvatel, z toho 11914 v produktivním věku.
    V obci se nachází pošta.
    V obci se nachází škola, popř. školka.
    V obci se nachází zdravotní zařízení.
    V obci je rozvod kanalizace.
    V obci je rozvod městské vody.
    V obci je rozvod plynu.

Podobné nabídky v okolí

Lokalita: Kojetická , Neratovice, okres Mělník, Česká republika Kojetická, Neratovice, okr. Mělník