Pronájem bytu 2+kk, 36 m2 - Konečná 1588, Zelené Předměstí, Pardubice, okr. Pardubice (již není v nabídce)
Cena:
12 000 Kč/měsíc
Stav:archiv
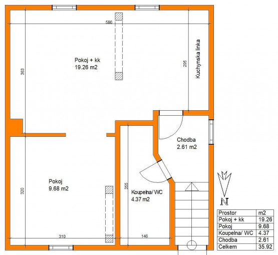
2+kk, 36 m2, cihlová, OV, 2. podlaží
Popis:
Dobrý den, hledáte světlý, útulný a čistý byt k pronájmu v Pardubicích? Požadujete, aby byl byt zařízený, protože nechcete mít starosti se stěhováním? Hledáte byt, kde je možné se ubytovat i na kratší dobu než obvyklé?
...Naše nová nabídka právě splňuje výše uvedené. Dovolte mi, abych Vám ji více přiblížil. Náš dlouholetý klient dokončil výstavbu nového bytu o dispozici 2+kk v podkrovní části rodinného domu se samostatným vchodem. A to na velice dobře dostupné adrese v ulici Konečná v Pardubicích.
Byt se pronajímá jako kompletně zařízený (pračka, lednička, postel, šatní skříň, komody, sedačka, televize, základní nádobí apod. ) a tím je vhodný i ke krátkodobému pronájmu.
Výše nájmu tohoto efektivního bytu činí 12. 000 Kč měsíčně včetně energií a připojení k internetové připojeníu, v případě ročního a delšího nájmu. Peněžitá jistota (vratná kauce) činí 24. 000 Kč. Provize RK je ve výši 9. 000 Kč + DPH (provize včetně DPH 10. 890 Kč). Parkování zdarma v ulici.
Krátkodobý pronájem je možný i od jednoho měsíce dále a jeho finanční podmínky budou sděleny na míru dané poptávce.
Budu se těšit na setkání s Vámi spojené s prohlídkou. Děkuji Václav Růžička, realitní specialista.
Pronajímatel si vyhrazuje právo vybrat nájemce podle jím zvolených kritérií.
- Vložení inzerátu:
22.3.2021
- Kód:
XA-228B
- Typ nemovitosti:
Byt
- Typ budovy:
Cihlová
- Dispozice:
2+kk
- Vlastnictví:
OV
- Podlaží:
2
- Podlahová plocha:
36 m2
- Stav objektu:
Po rekonstrukci
- Bezbariérový byt:
Ano
- Doprava:
MHD
- Zařízený:
Ano
- Bezbariérový přístup:
Ano
- Nabídky v okolí: