• Sledovat cenu
  •  

Zasílání upozornění emailem:

Pronájem bytu 2+1, 88 m2 - Na Loučkách, Přerov

Cena: 9 500 Kč/měsíc
Stav:Volný
2+1, 88 m2, cihlová, OV, 3. podlaží
Popis: Pokud hledáte bydlení v klidném prostředí, a přitom poblíž centra, mám pro Vás k pronájmu prostorný cihlový byt, který se nachází ve slepé ulici Na loučkách, kde rozhodně nebudete mít ani problém s parkováním. Byt se na...chází v 2. patře (3. NP (třetí nadzemní patro)) bytového domu, ve kterém je celkem pouze šest bytů, a kde bydlí pouze slušní obyvatelé.
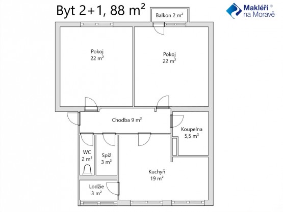
Byt prošel před cca 12 lety celkovou rekonstrukci, a je tedy ve velice dobrém stavu. Vsechny místnosti jsou neprůchozí, pronajímá se bez vybavení s výjimkou kuchyně, kde je kuch. linka se sklokeramickou varnou deskou a myčkou. Více informací o obytné ploše bytu i jednotlivých místností viz půdorys.
Topení a ohřev vody zajištuje vlastní plynový kotel. Na podlahách jsou renovované parketová podlaha, v kuchyni a koupelně keramická dlažba, sociální zařízení WC je samotatné. V bytě je lodžie vedle kuchyně směrem do klidné ulice, v jednom z pokojů je balkon směrem do dvora. Byt bude k dispozici cca od poloviny ledna 2026, minulý nájemce , který zde spokojeně bydlel skoro 10 let , se právě odstěhoval. Nájemné činí 9 500 kč + zálohy na plyn (topení, ohřev vody) + elektřinu 4 000 Kč. Kauce 15 000 kč (popř. její část) může být po nějaké době v případě bezproblémového užívání vrácena, majitel je solidní a uvítá stejně solidní nájemce ( pracující pár se stabilním příjmem bez závislosti na sociálních dávkách ) k dlouhodobému bydlení. Pokud Vás tento byt zaujal, volejte nebo si napište o více info a případné objednání termínu prohlídky, uvítám také nějaké informace o zájemcích.
  • Vložení inzerátu:
    12.12.2025
  • Kód:
    21671
  • K dispozici od:
    0.0.0
  • Typ nemovitosti:
    Byt
  • Typ budovy:
    Cihlová
  • Dispozice:
    2+1
  • Vlastnictví:
    OV
  • Podlaží:
    3
  • Podlahová plocha:
    88 m2
  • Balkón:
    2 m2
  • Stav objektu:
    Velmi dobrý
  • Umístění objektu:
    Klidná část
  • Telekomunikace:
    Internet
  • Voda:
    dálkový vodovod
  • Elektřina:
    230 V
  • Topeni:
    ústřední plynové
  • Plyn:
    plynovod
  • Odpad:
    kanalizace
  • Energetická náročnost:
    G - Mimořádne nehospodárná
  • Nabídky v okolí:
  • Informace o obci:
    Obec Přerov má 45778 obyvatel, z toho 31830 v produktivním věku.
    V obci se nachází pošta.
    V obci se nachází škola, popř. školka.
    V obci se nachází zdravotní zařízení.
    V obci je rozvod kanalizace.
    V obci je rozvod městské vody.
    V obci je rozvod plynu.
Lokalita: Na Loučkách , Přerov, okres Přerov, Česká republika Na Loučkách, Přerov

Kontakt

Bc. Jarmila Neubauerová



Volná pracovní místa ExpertPrace.cz
  • Objednání prohlídky a více informací
  •  
  • Poslat na e-mail
  •  

Zasílání odkazu na realitu emailem: