• Sledovat cenu
  •  

Zasílání upozornění emailem:

Pronájem bytu 2+1, 84 m2 - Anny Letenské, Praha (již není v nabídce)

Cena: 28 000 Kč/měsíc
Stav:archiv
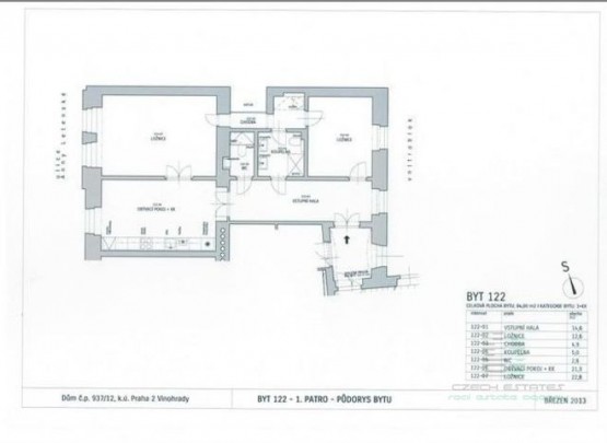
2+1, 84 m2, cihlová, OV, 2. podlaží
Popis: Nabízíme k pronájmu kompletně zrekonstruovaný nezařízený byt. Parkety, vysoké stropy, vybavená kuch. linka. Pračka se sušičkou. 1. patro včetně výtahu.
Volný od července 2019.
Poptávající klient je srozuměn s úhradou ...provize ve výši jednoho měsíčního nájmu plus DPH.
  • Vložení inzerátu:
    13.5.2019
  • Kód:
    1817
  • K dispozici od:
    1.7.2019
  • Typ nemovitosti:
    Byt
  • Typ budovy:
    Cihlová
  • Dispozice:
    2+1
  • Vlastnictví:
    OV
  • Podlaží:
    2
  • Podlahová plocha:
    84 m2
  • Stav objektu:
    Velmi dobrý
  • Energetická náročnost:
    G - Mimořádne nehospodárná
  • Nabídky v okolí:
  • Informace o obci:
    Obec Praha má 1257158 obyvatel, z toho 889974 v produktivním věku.
    V obci se nachází pošta.
    V obci se nachází škola, popř. školka.
    V obci se nachází zdravotní zařízení.
    V obci je rozvod kanalizace.
    V obci je rozvod městské vody.
    V obci je rozvod plynu.

Podobné nabídky v okolí

Lokalita: Anny Letenské , Praha, Česká republika Anny Letenské, Praha