• Sledovat cenu
  •  

Zasílání upozornění emailem:

Pronájem bytu 2+1, 67 m2 - Lucemburská 1, Praha (již není v nabídce)

Cena: 12 500 Kč/měsíc
Stav:archiv
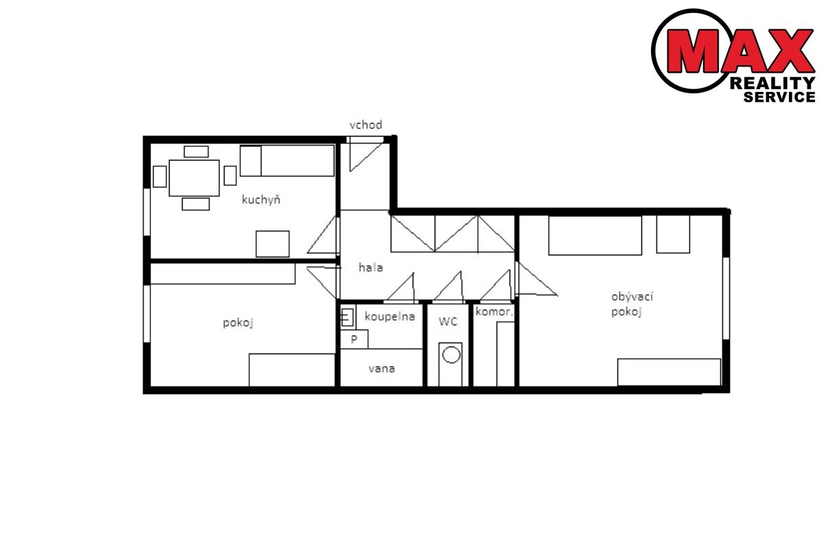
2+1, 67 m2, cihlová, OV, 6. podlaží
Popis: Dovoluji si Vám nabídnout k dlouhodobému pronájmu hezký světlý byt o dispozici 2+1, o výměře 67, 4 m2, který se nachází v 5. patře včetně výtahu. Byt je ve velice dobrém... stavu, kompletně zařízený (nová lednice, el. sporák, digestoř, mikrovlnná trouba, pračka, TV atd. ) toaleta samostatná a praktická komora. Byt sestává z centrální předsíně, odkud je přístup do každé místnosti v bytě, plus praktická komora, velké úložné prostory, držák na kola, UPC zavedeno. V okolí výborná občanská vybavenost, cca 100m od nákupního centra Flora, metro Flora (linka A) hned u domu. Velice příznivé měsíční náklady, které činí 1. 500, - Kč pro dvě osoby. Elektřina se převádí na nájemce. V případě dotazů a prohlídky mne neváhejte kontaktovat.
  • Vložení inzerátu:
    23.2.2021
  • Kód:
    00087
  • K dispozici od:
    0.0.0
  • Typ nemovitosti:
    Byt
  • Typ budovy:
    Cihlová
  • Dispozice:
    2+1
  • Vlastnictví:
    OV
  • Podlaží:
    6
  • Podlahová plocha:
    67 m2
  • Stav objektu:
    Velmi dobrý
  • Umístění objektu:
    Klidná část
  • Telekomunikace:
    Telefon, Internet, Satelit, Kabelová televize, Kabelové rozvody
  • Voda:
    dálkový vodovod
  • Elektřina:
    230 V
  • Doprava:
    silnice, MHD
  • Odpad:
    kanalizace
  • Komunikace:
    asfaltová
  • Zařízený:
    Ano
  • Energetická náročnost:
    D - Méne úsporná
  • Podle vyhlášky:
    c. 78/2013 Sb.
  • Ukazatel náročnosti:
    142 kWh/m2
  • Nabídky v okolí:
  • Informace o obci:
    Obec Praha má 1257158 obyvatel, z toho 889974 v produktivním věku.
    V obci se nachází pošta.
    V obci se nachází škola, popř. školka.
    V obci se nachází zdravotní zařízení.
    V obci je rozvod kanalizace.
    V obci je rozvod městské vody.
    V obci je rozvod plynu.

Podobné nabídky v okolí

Lokalita: Lucemburská 1, Praha, Česká republika Lucemburská 1, Praha