• Sledovat cenu
  •  

Zasílání upozornění emailem:

Pronájem bytu 2+1, 65 m2 - Krupská 1753, Praha 10, Strašnice, Praha (již není v nabídce)

Cena: 18 500 Kč/měsíc
Stav:archiv
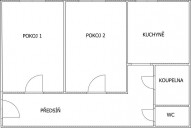
2+1, 65 m2, cihlová, OV, 2. podlaží
Popis: Exkluzivně nabízíme pronájem pěkného světlého bytu 2+1 65 m2, Praha 10 Strašnice, ulice Krupská. Byt se nachází ve 2. nadzemní podlaží cihlového domu bez výtahu. Dům i ...byt jsou po rekonstrukci, byt má samostatné pokoje a je částečně zařízen - kuch. linka, lednice, pračka, myčka, manželská postel, stůl, 4 židle, vestavěné skříně, sedačka v obývacím pokoji. Byt má plastová okna se západní orientací. Okolí bytu je klidné, v dosahu je kompletní občanská vybavenost včetně polikliniky, supermarketu a parku Gutovka. Za pár minut se dostanete na tramvajouvou zastávku, metro Strašnická je vzdálené 3 zastávky tramvají. Byt je vhodý pro nekuřácký pár bez psa a je k nastěhování od 1. 4. 2025 . Měsíční poplatky pro dvě osoby činí 4. 500, - Kč včetně elektřiny a plynu. Při podpisu smlouvy je třeba složit jistotu 23. 000, - Kč a provizi 23. 000, - Kč.

Podobné nabídky v okolí

Lokalita: Krupská 1753, Praha 10, Strašnice, Praha, Česká republika Krupská 1753, Praha 10, Strašnice, Praha