• Sledovat cenu
  •  

Zasílání upozornění emailem:

Pronájem bytu 2+1, 63 m2 - Štěpánská, Praha 1, Nové Město, Praha (již není v nabídce)

Cena: 23 780 Kč/měsíc
Stav:archiv
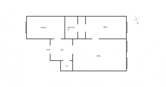
2+1, 63 m2, cihlová, OV, 4. podlaží
Popis: Krásný, slunný zařízený byt 2+1 po rekonstrukci na Novém Městě - Praha 1. Byt se nachází ve 3. patře cihlového, historického domu z 19. století. Byt i celý dům prošli kompletní... rekonstrukcí. K dispozici výtah. Byt je možné pronajmout i jako nezařízený. Celková užitná plocha bytu činí 63 m2. K dispozici krásná kuchyňská linka se spotřebiči. Na podlahách parketová podlaha a dlažba. Satelitní TV, kabelová televize a internetové připojení. Možnost pronájmu garážového stání za poplatek. Vynikající lokalita. Václavské náměstí jen pár minut chůze od domu. Vynikající občanská vybavenost. Každý si jistě vybere z bohaté nabídky volnočasových aktivit. Snadná dopravní dostupnost do všech částí Prahy. Zastávka tram nebo stanice metra nedaleko.

Podobné nabídky v okolí

Lokalita: Štěpánská , Praha 1, Nové Město, Praha, Česká republika Štěpánská, Praha 1, Nové Město, Praha