Pronájem bytu 2+1, 60 m2 - Boršov, Praha 1, Staré Město, Praha (již není v nabídce)
            
            
                
        Cena:
                        16 000 Kč/měsíc
        
              Stav:archiv
        
         
          
          
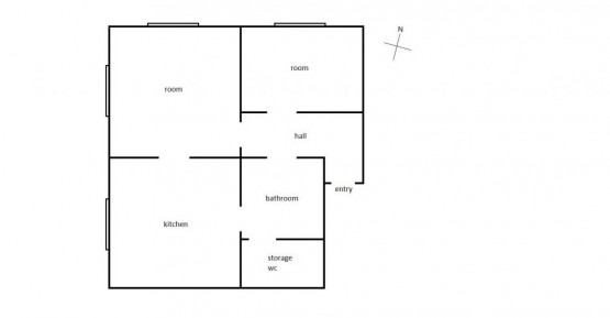
                2+1, 60 m2, cihlová, OV, 3. podlaží          
        
        Popis:
        
                                Nabízíme Vám k pronájmu hezký částečně zařízený byt 2+1 o celkové rozloze 60 m2,  který se nachází na Praze 1  -  Staré Město,  ulice Boršov.  Byt je ve 2. patře cihlového d...omu bez výtahu.  Kuchyňská linka s elektrickým sporákem,  troubou,  myčkou a lednicí.  V koupelně je sprchový kout a pračka.  Možnost internetové připojeníového připojení.  Byt se nachází v úžasné lokalitě Starého Města,  pouhých pár kroků od Vltavy a Karlova mostu či Národního divadla.  Výborná dopravní dostupnost,  kousek od domu je zastávka tramvaje.  Veškerá občanská vybavenost v okolí  -  spousta obchodů,  divadel,  klubů,  restaurací či barů.