Pronájem bytu 2+1, 58 m2 - Benešovo náměstí 2471, Zelené Předměstí, Pardubice, okr. Pardubice
Cena:
8 500 Kč/měsíc
Stav:Volný
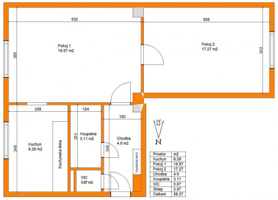
2+1, 58 m2, cihlová, OV, 1. podlaží
Popis:
Dobrý den, hledáte krátkodobé ubytování v Pardubicích a potřebujete vyřešit ubytování i za cenu kratšího termínu pronájmu? Možná právě Vás by mohla zaujmout naše nabídka.
Jedná se o pronájem bytu ... kuchyň">2+1, který se nachází ve zvýšeném přízemí zděného bytové domu v Pardubicích v ulici Benešovo náměstí, na sídlišti zvaném Višňovka. Byt se pronajímá jako kompletně zařízený (jak je uvedeno na fotografiích) včetně nábytku, spotřebičů, nádobí apod. Jedná se totiž o neobvyklou nabídku pronájmu, a to pouze v termínu od 9. 1. 2026 do 31. 5. 2026. Důvodem pronájmu v tomto termínu je zahraniční cesta majitelů, kteří chtějí pomoci vyřešit bydlení lidem, kterým budou důvěřovat, že se o jejich byt postarají včetně potřebného nakrmení dvou terarijních hadů. Na oplátku je zvýhodněna výše nájmu, a to pouhých 8. 500 Kč + 4. 000 Kč záloha na energie. Peněžitá jistota (vratná kauce) činní 25. 000 Kč. Provize realitní kanceláře je také snížena na 5. 000 Kč.
Jak bylo psáno výše, jedná se o pronájem nájemci, ve kterého bude vložena důvěra, protože bude užívat plně vybavenou domácnost majitelů včetně nakrmení dvou terarijních hadů (krmení je bezpečné a proběhne zaškolení). Hledáme tedy ideálně studentský pár, který nemá vyřešené bydlení a pomůže mu nabídnutý termín. Nemáme zájem o nájemce s dalším domácím zvířetem. Pronájem také není úplně vhodný jako spolubydlení nebo bydlení s dětmi.
Děkuji za pozornost. Václav Růžička, realitní specialista.
Pronajímatel si vyhrazuje právo na výběr nájemce dle vlastních kritérií.
- Vložení inzerátu:
24.11.2025
- Kód:
XA-439
- Typ nemovitosti:
Byt
- Typ budovy:
Cihlová
- Dispozice:
2+1
- Vlastnictví:
OV
- Podlaží:
1
- Podlahová plocha:
58 m2
- Stav objektu:
Dobrý
- Bezbariérový byt:
Ano
- Telekomunikace:
Internet
- Voda:
dálkový vodovod
- Topeni:
ústřední dálkové
- Plyn:
plynovod
- Odpad:
kanalizace
- Komunikace:
asfaltová
- Zařízený:
Ano
- Bezbariérový přístup:
Ano
- Nabídky v okolí: