• Sledovat cenu
  •  

Zasílání upozornění emailem:

Pronájem bytu 2+1, 56 m2 - Langrova, Slatina, Brno, okr. Brno-město (již není v nabídce)

Cena: 12 000 Kč/měsíc
Stav:archiv
2+1, 56 m2, panelová, OV, 3. podlaží
Popis: Pronájem 2+1 Brno, Slatina, ulice Langrova

Nabízíme k pronájmu byt s dispozicí 2+1 v lokalitě Brno Slatina, na ulici Langrova.
Byt je si...tuován ve 2. patře bytového domu bez výtahu, celková plocha činí 56 m2 a k bytu náleží balkon.


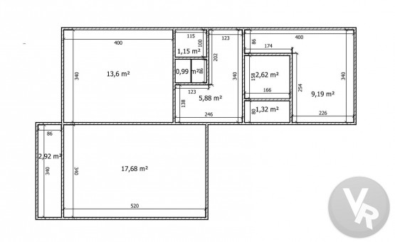
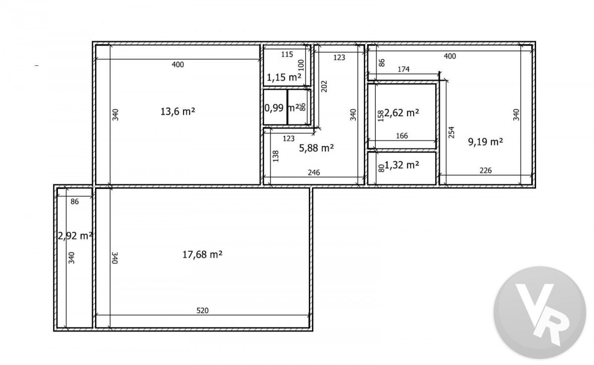
Dispozice bytu: Chodba 5, 88 m2, z chodby je vstup do všech částí bytu. Obývací pokoj 17, 68 m2, ze kterého je vstup na balkon 2, 92 m2, ložnice 13, 6 m2, komora 0, 99 m2, druhá komora 1, 15 m2, koupelna s vanou 2, 62 m2, samostatná toaleta 1, 32 m2 a kuchyň 9. 19 m2.


Vybavení: V bytě je kuchyňská linka včetně elektrospotřebičů: Plynový sporák, rychlovarná konvice, stůl, židle, mikrovlnná trouba a lednice. V koupelně je k dispozici pračka a jinak je byt nezařízený.


Byt je slunný a dobře dispozičně řešený. Výborná poloha a klidná lokalita. Parkování je bezproblémové na parkovišti před bytovým domem. Výborná dostupnost do centra.
  • Vložení inzerátu:
    13.11.2020
  • Kód:
    144/4457
  • Typ nemovitosti:
    Byt
  • Typ budovy:
    Panelová
  • Dispozice:
    2+1
  • Vlastnictví:
    OV
  • Podlaží:
    3
  • Podlahová plocha:
    56 m2
  • Stav objektu:
    Dobrý
  • Bezbariérový byt:
    Ano
  • Bezbariérový přístup:
    Ano
  • Energetická náročnost:
    G - Mimořádne nehospodárná
  • Nabídky v okolí:

Podobné nabídky v okolí

Lokalita: Langrova , Slatina, Brno, okres Brno-město, Česká republika Langrova, Slatina, Brno, okr. Brno-město