• Sledovat cenu
  •  

Zasílání upozornění emailem:

Pronájem bytu 2+1, 54 m2 - Větrná, Poruba, Ostrava, okr. Ostrava-město (již není v nabídce)

Cena: 9 500 Kč
Stav:archiv
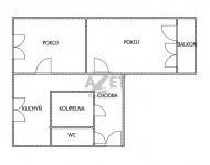
2+1, 54 m2, družstevní, 5. podlaží
Popis: V zastoupení majitele Vám nabízíme možnost pronájmu bytové jednotky 2+1 s lodžií o celkové výměře 54m2, situované na ulici Větrná v 5. nadpodlaží /4. patro/ z pěti. v dom...ě bez výtahu. Dům prošel před nedávnem celkovou revitalizací /plastová okna, fasáda, zateplení, střecha, vchod/. Byt se dvěma neprůchozími pokoji je orientován na dvě světové strany /severovýchod a jihozápad/, zánovní koupelnou kuchyní a samostatným sociální zařízení WC. Zánovní kuchyňská linka v barevném tónu dřeva se spotřebiči /plynový sporák s plynovou troubou, automatická pračka/. Bytové jádro kombinované /cihlová vyzdívka/ sádrokarton/. V předsíni prostorná vestavěná skříň na míru poskytuje komfortní úložný prostor. V koupelně keramické obklady, zapuštěná vana, umývadlo se skříňkou a zrcadlo. Podlahy v pokojích a kuchyni tvoří plovoucí podlahy, v koupelně a na sociální zařízení WC keramická dlažba. K bytu náleží sklepní kóje. V okolí mnoho parkovacích míst a veškerá občanská vybavenost. Nájemné je stanoveno 9 500, - Kč/měs. včetně služeb /voda a topení/ + plyn a elektřina na nájemníka. Vratná kauce /jistina/ 19 000, - Kč. Provize RK /rezervační poplatek/ je 9 500, - Kč. Byt je ihned k nastěhování. Pro sjednání termínu prohlídky nás neváhejte kdykoliv kontaktovat.
  • Vložení inzerátu:
    28.12.2021
  • Kód:
    781/4500
  • Typ nemovitosti:
    Byt
  • Dispozice:
    2+1
  • Vlastnictví:
    Družstevní
  • Podlaží:
    5
  • Podlahová plocha:
    54 m2
  • Plocha parcely:
    54 m2
  • Lodžie:
    3 m2
  • Sklep:
    2 m2
  • Stav objektu:
    Dobrý
  • Bezbariérový byt:
    Ano
  • Telekomunikace:
    Internet, Kabelová televize, Kabelové rozvody
  • Voda:
    dálkový vodovod
  • Elektřina:
    230 V
  • Doprava:
    silnice, dálnice, MHD, autobus
  • Topeni:
    ústřední dálkové
  • Plyn:
    plynovod
  • Odpad:
    kanalizace
  • Komunikace:
    asfaltová
  • Bezbariérový přístup:
    Ano
  • Energetická náročnost:
    G - Mimořádne nehospodárná
  • Nabídky v okolí:

Podobné nabídky v okolí

Lokalita: Větrná , Poruba, Ostrava, okres Ostrava-město, Česká republika Větrná, Poruba, Ostrava, okr. Ostrava-město