Pronájem bytu 2+1, 54 m2 - Kosmonautů, Karviná (již není v nabídce)
            
            
                
        Cena:
                        10 500 Kč/měsíc
        
              Stav:archiv
        
         
          
          
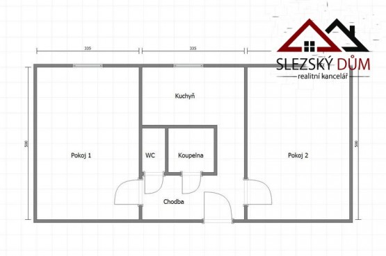
                2+1, 54 m2, panelová, OV, 4. podlaží          
        
        Popis:
        
                                Nabízím Vám k pronájmu byt v osobním vlastnictví  2+1  na ul.  Kosmonautů v Karviné  -  Ráj.   Jedná se o žádanou lokalitu s dobrou občanskou vybaveností a dostupností.  
Byt. jednotk...a se nachází ve 3.  poschodí domu po kompletní revitalizaci a prošla lehkými úpravami.  
Nájem je ve výši 10. 500,  -  Kč + služby + kauce + poplatek RK. 
Poblíž se nachází MŠ,  ZŠ,  lékárna,  nemocnice,  restaurace,  bankomat a nákupní centrum.  
V případě zájmu o prohlídku mě kontaktujte. 
            
            
    - Vložení inzerátu:2.10.2024  
- Kód:12558  
- K dispozici od:0.0.0  
- Typ nemovitosti:Byt  
- Typ budovy:Panelová  
- Dispozice:2+1  
- Vlastnictví:OV  
- Podlaží:4  
- Podlahová plocha:54 m2 
- Sklep:Ano 
- Stav objektu:Velmi dobrý  
- Umístění objektu:Centrum  
- Voda:dálkový vodovod  
- Elektřina:230 V  
- Doprava:silnice, MHD, autobus  
- Plyn:plynovod  
- Odpad:kanalizace  
- Komunikace:asfaltová  
- Energetická náročnost:G - Mimořádne nehospodárná  
- Nabídky v okolí:
- Informace o obci:Obec Karviná má 60679 obyvatel, z toho 42232 v produktivním věku.
 V obci se nachází pošta.
 V obci se nachází škola, popř. školka.
 V obci se nachází zdravotní zařízení.
 V obci je rozvod kanalizace.
 V obci je rozvod městské vody.
 V obci je rozvod plynu.
 
 
 
     
        
            Lokalita:
            
                Kosmonautů , Karviná, okres Karviná, Česká republika
                
                                                                
                                                                                                                                                                                                                                        Kosmonautů, Karviná