• Sledovat cenu
  •  

Zasílání upozornění emailem:

Pronájem bytu 2+1, 49 m2 - Dukelská, Zlín

Cena: 16 500 Kč/měsíc
Stav:Volný
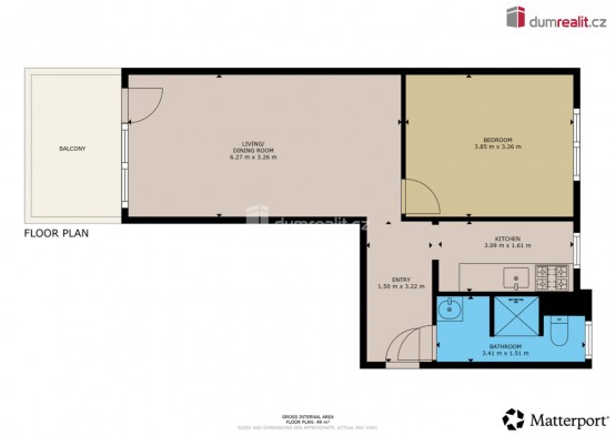
2+1, 49 m2, panelová, OV, 4. podlaží
Popis: + elektřina, plyn. Nabízíme k pronájmu byt o dispozici 2+1 a výměře 49 m² ve 4. nadzemním podlaží bytového domu na adrese Dukelská, Zlín. Byt je ve velice dobrém stavu a díky své d...ispozici nabízí příjemné a praktické bydlení.

Byt tvoří prostorný obývací pokoj, samostatná ložnice, kuchyně s kuchyňskou linkou, koupelna se sprchovým koutem a samostatné sociální zařízení WC. Z obývacího pokoje je přístup na balkon. Součástí bytu je také menší sklepní prostor v suterénu domu, vhodný například pro uložení drobného vybavení.

Dům se nachází v lokalitě s výbornou občanskou vybaveností a dobrou občanskou dostupností do centra města. V blízkosti je zastávka MHD, obchody, školy i další služby.

Měsíční nájemné činí 16. 500 Kč. včetně poplatků za služby.
K nájmu se hradí elektřina a plyn, které si nájemník přepisuje na sebe.
Kauce je stanovena na 30. 000 Kč.
Provize RK se hradí při podpisu rezervační smlouvy.


Byt je možný k nastěhování od 1. května.

Pro více informací nebo domluvení prohlídky nás neváhejte kontaktovat. Ev. číslo: 655020. Energetický štítek: D (134 kWh/m2/rok).
  • Vložení inzerátu:
    16.3.2026
  • Kód:
    4161232
  • Typ nemovitosti:
    Byt
  • Typ budovy:
    Panelová
  • Dispozice:
    2+1
  • Vlastnictví:
    OV
  • Podlaží:
    4
  • Podlahová plocha:
    49 m2
  • Balkón:
    Ano
  • Sklep:
    Ano
  • Stav objektu:
    Velmi dobrý
  • Energetická náročnost:
    D - Méne úsporná
  • Ukazatel náročnosti:
    134 kWh/m2
  • Nabídky v okolí:
  • Informace o obci:
    Obec Zlín má 75469 obyvatel, z toho 51734 v produktivním věku.
    V obci se nachází pošta.
    V obci se nachází škola, popř. školka.
    V obci se nachází zdravotní zařízení.
    V obci je rozvod kanalizace.
    V obci je rozvod městské vody.
    V obci je rozvod plynu.
Lokalita: Dukelská , Zlín, okres Zlín, Česká republika Dukelská, Zlín

Kontakt

Martin Hebelka


Podobné nabídky v okolí


  • Objednání prohlídky a více informací
  •  
  • Poslat na e-mail
  •  

Zasílání odkazu na realitu emailem: