• Sledovat cenu
  •  

Zasílání upozornění emailem:

Pronájem bytu 2+1, 49 m2 - Jožky Jabůrkové 279, Trnová, Pardubice, okr. Pardubice (již není v nabídce)

Cena: 12 891 Kč/měsíc
Stav:archiv
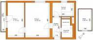
2+1, 49 m2, cihlová, družstevní, 3. podlaží
Popis: Dobrý den, hledáte pronájem zrekonstruovaného bytu, nejlépe v menším zděném domě? Máte rádi klidné lokality v blízkosti zeleně, ale s dostupností služeb? Možná právě Vás by mohla oslovit tato nabídka.

Jedná se o zrekonst...ruovaný byt 2+1 s balkónem o celkové ploše 48, 69 m2, který se nachází v 3. NP (třetí nadzemní patro) (2. patře) zděného bytového domu v lokalitě Pardubice Trnová, která přímo sousedí s lesem.
Rekonstrukce se týkala koupelny s sociální zařízení WC, kuchyně, podlah a interiérových dveří. Součástí vybavení bude kuchyňská linka s varnou deskou, troubou a odsavačem pár. Dále je možné odkoupit od stávajících nájemců vybavení (postel, šatní skříně, knihovnu, obývací stěnu, konferenční stolek, rohovou sedačku, počítačový stolek, jídelní stůl + 4 židle, ledničku, mikrovlnnou troubu).

Výše měsíčního nájmu činí 12. 891, - Kč + 2. 614, - Kč zálohy na energie a služby spojené s užíváním bytu. Peněžitá jistota (vratná kauce) 20. 000, - Kč. Provize RK činí 12. 000, - Kč.

Volný od 1. 5. 2023. Pokud Vás nabídka oslovila, přijďte se osobně přesvědčit jestli je vhodná právě pro Vás.

Děkuji Václav Růžička, realitní specialista.
Pronajímatel si vyhrazuje právo vybrat nájemce na základě jím zvolených kritérií.
  • Vložení inzerátu:
    14.2.2023
  • Kód:
    XA-338
  • Typ nemovitosti:
    Byt
  • Typ budovy:
    Cihlová
  • Dispozice:
    2+1
  • Vlastnictví:
    Družstevní
  • Podlaží:
    3
  • Podlahová plocha:
    49 m2
  • Plocha parcely:
    49 m2
  • Balkón:
    Ano
  • Stav objektu:
    Velmi dobrý
  • Bezbariérový byt:
    Ano
  • Bezbariérový přístup:
    Ano
  • Energetická náročnost:
    C - Úsporná
  • Podle vyhlášky:
    c. 78/2013 Sb.
  • Nabídky v okolí:

Podobné nabídky v okolí

Lokalita: Jožky Jabůrkové 279, Trnová, Pardubice, okres Pardubice, Česká republika Jožky Jabůrkové 279, Trnová, Pardubice, okr. Pardubice