• Sledovat cenu
  •  

Zasílání upozornění emailem:

Pronájem bytu 2+1, 48 m2 - Sídliště, Hrušovany u Brna, okr. Brno-venkov (již není v nabídce)

Cena: 19 500 Kč/měsíc
Stav:archiv
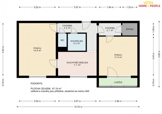
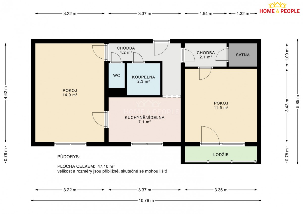
2+1, 48 m2, panelová, OV, 5. podlaží
Popis: Exkluzivně nabízíme k pronájmu moc hezký byt 2+1 v malebné lokalitě Hrušovany u Brna. Tento byt prošel celkovou rekonstrukcí, která mu dodala moderní a svěží vzhled. Nachází se v po...sledním podlaží, což zajišťuje nejen klid a soukromí, ale také nádherný výhled do okolní krajiny, který si můžete vychutnávat z vlastního balkonu.

Byt o celkové ploše 48 m² se pyšní neprůchozími pokoji, což zaručuje pohodlné a praktické uspořádání prostoru. Obývací pokoj je prostorný a světlý, ideální pro rodinné chvíle nebo relaxaci po náročném dni. Kuchyně je moderně vybavená a nabízí dostatek místa pro vaření a společné stravování.

Hrušovany u Brna jsou skvělou volbou pro ty, kteří hledají klidné bydlení s dobrou občanskou dostupností do Brna. V okolí se nachází veškerá občanská vybavenost, včetně obchodů, škol a sportovních zařízení. Tento byt je ideální jak pro mladé páry, tak pro rodiny s dětmi nebo investory hledající zajímavou příležitost. Nezmeškejte tuto jedinečnou nabídku a domluvte si prohlídku ještě dnes!

Na začátek je potřeba počítat s trojnásobkem nájmu. Ev. číslo: 31743. Energetický štítek: C (108 kWh/m2/rok).
  • Vložení inzerátu:
    1.5.2025
  • Kód:
    3980464
  • Typ nemovitosti:
    Byt
  • Typ budovy:
    Panelová
  • Dispozice:
    2+1
  • Vlastnictví:
    OV
  • Podlaží:
    5
  • Podlahová plocha:
    48 m2
  • Balkón:
    Ano
  • Stav objektu:
    Velmi dobrý
  • Zařízený:
    Ano
  • Energetická náročnost:
    C - Úsporná
  • Ukazatel náročnosti:
    108 kWh/m2
  • Nabídky v okolí:
  • Informace o obci:
    Obec Hrušovany u Brna má 3280 obyvatel, z toho 2341 v produktivním věku.
    V obci se nachází pošta.
    V obci se nachází zdravotní zařízení.
    V obci je rozvod kanalizace.
    V obci je rozvod městské vody.
    V obci je rozvod plynu.

Podobné nabídky v okolí

Lokalita: Sídliště , Hrušovany u Brna, okres Brno-venkov, Česká republika Sídliště, Hrušovany u Brna, okr. Brno-venkov