• Sledovat cenu
  •  

Zasílání upozornění emailem:

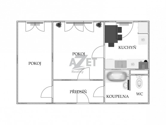
Pronájem bytu 2+1, 47 m2 - Podroužkova 6049, Poruba, Ostrava, okr. Ostrava-město (již není v nabídce)

Cena: 8 500 Kč/měsíc
Stav:archiv
2+1, 47 m2, panelová, 7. podlaží
Popis: Naše společnost Vám v exkluzivním zastoupení majitele nabízí k pronájmu byt v osobním vlastnictví v 7. patře z osmi. Žádané místo v Ostravě - Porubě. Díky velice blízké lokaci VŠB (3 min. jízda automobilem) i dalších šk...ol je nabídka tohoto pronájmu vhodná především pro aktivní či budoucí studenty. Rozlehlá předsíň s vestavěnou skříní. Koupelna se zapuštěnou vanou, sprchou, umyvadlem a odděleným prostorem pro sociální zařízení WC. Kuchyňská linka s troubou, digestoří, dřezem, pračkou a lednicí s mrazničkou. PVC lino ve všech místnostech. Nové koberce v kuchyni a obývacích pokojích. Plastová okna se žaluziemi, parapety. Litinové radiátory. Voda a odpady v plastu. Výhled na severovýchodní stranu. Bezbariérový přístup až na samotné patro. K bytu náleží zabezpečený sklep. Společná kolárna. Veškerý nábytek a další vybavení na fotografiích je součástí nabídky. Možnost připojení na společnou TV anténu zdarma (základní nabídka). Poskytovatele internetové připojeníu ve vchodě Poda a Vodafone. Velkou výhodou této lokality je bezprostřední dostupnost městské hromadné dopravy a nespočet parkovacích míst. Revitalizace obytného domu proběhla v podobě fasády, zateplení, střechy, výtahu, vstupního vchodu a kamerového systému. Nemovitost je k dispozici ihned. Preferujeme dlouhodobý pronájem. V případě zájmu požadujeme složení - 1 krát nájem (8500, - Kč), 1 krát vratná kauce (17. 000, - Kč), provize RK (8500, - Kč) a přepsání odběru el. energie a zemního plynu na nájemce. Maximální občanská vybavenost ve všech směrech. Pro více informací kontaktujte našeho makléře. Těšíme se na Vaší návštěvu.
  • Vložení inzerátu:
    23.9.2022
  • Kód:
    983
  • Typ nemovitosti:
    Byt
  • Typ budovy:
    Panelová
  • Dispozice:
    2+1
  • Podlaží:
    7
  • Podlahová plocha:
    47 m2
  • Sklep:
    2 m2
  • Stav objektu:
    Dobrý
  • Bezbariérový byt:
    Ano
  • Telekomunikace:
    Internet, Kabelová televize
  • Voda:
    dálkový vodovod
  • Elektřina:
    230 V
  • Doprava:
    silnice, dálnice, MHD, autobus, vlak
  • Topeni:
    ústřední dálkové
  • Plyn:
    plynovod
  • Odpad:
    kanalizace
  • Komunikace:
    asfaltová
  • Zařízený:
    Ano
  • Bezbariérový přístup:
    Ano
  • Energetická náročnost:
    C - Úsporná
  • Podle vyhlášky:
    c. 78/2013 Sb.
  • Ukazatel náročnosti:
    60 kWh/m2
  • Nabídky v okolí:

Podobné nabídky v okolí

Lokalita: Podroužkova 6049, Poruba, Ostrava, okres Ostrava-město, Česká republika Podroužkova 6049, Poruba, Ostrava, okr. Ostrava-město