• Sledovat cenu
  •  

Zasílání upozornění emailem:

Pronájem bytu 1+kk, 44 m2 - Osvobození, Slavičín, okr. Zlín (již není v nabídce)

Cena: 12 000 Kč/měsíc
Stav:archiv
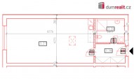
1+kk, 44 m2, OV, 3. podlaží
Popis: uvedená cena je bez energií, které činí 3. 000 Kč/měs. . Dumrealit. cz Vám nabízí ve výhradním zastoupení majitele k pronájmu nově vybudovaný byt o dispozici 1+kk v centru Slavi...čína. Jedná se o bytovou jednotku o ploše 44 m². Nová kuchyňská linka bude vybavena spotřebiči (trouba, varná deska, digestoř, dřez a baterie). V okolí je veškerá občanská vybavenost. Byt s nízkými náklady na bydlení. Parkování přímo u domu. Cena nájmu 12. 000, - Kč/měs. + energie 3. 000, - Kč/měs. a kauce 15. 000, - Kč. Byt bude dokončený a k nastěhování v průběhu dubna roku 2024. Vizualizace je pouze orientační. Jsme připraveni Vám nabídnout i další možnosti bytů ve stejné budově. Pro více informací kontaktujte realitního makléře. Ev. číslo: 645360. Energetický štítek: D (125 kWh/m2/rok).
  • Vložení inzerátu:
    3.4.2024
  • Kód:
    3775926
  • Typ nemovitosti:
    Byt
  • Dispozice:
    1+kk
  • Vlastnictví:
    OV
  • Podlaží:
    3
  • Podlahová plocha:
    44 m2
  • Stav objektu:
    Ve výstavbě
  • Energetická náročnost:
    D - Méne úsporná
  • Ukazatel náročnosti:
    125 kWh/m2
  • Nabídky v okolí:
  • Informace o obci:
    Obec Slavičín má 6800 obyvatel, z toho 4830 v produktivním věku.
    V obci se nachází pošta.
    V obci se nachází škola, popř. školka.
    V obci se nachází zdravotní zařízení.
    V obci je rozvod kanalizace.
    V obci je rozvod městské vody.
    V obci je rozvod plynu.

Podobné nabídky v okolí

Lokalita: Osvobození , Slavičín, okres Zlín, Česká republika Osvobození, Slavičín, okr. Zlín