• Sledovat cenu
  •  

Zasílání upozornění emailem:

Pronájem bytu 1+kk, 40 m2 - Jana Palacha, Pardubice (již není v nabídce)

Cena: 13 000 Kč/měsíc
Stav:archiv
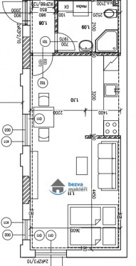
1+kk, 40 m2, cihlová, OV, 1. podlaží
Popis: Pronajmeme nově zrekonstruovaný byt 1+kk v přízemí dvorního traktu domu situovaný do zahrady. Vybaven je kuchyňskou linkou s el. troubou, varnou deskou, digestoří a manželskou... postelí.
Na podlaze vinyl a dlažba. Byt je vytápěn elektrickým kotlem. Možné připojení k internetové připojeníu. Chcete bydlet v lokalitě s výbornou dostupností všech služeb? Pak mám právě pro Vás tuto nabídku.
Měsíční holý nájem je 13. 000, - , zálohy na energie jsou voda 500, - /osoba, 300, - úklid společných prostor. Elektřina se přepisuje na nové nájemníky. Kauce 30. 000, - , provize RK 13. 000, - .
V nejbližším okolí naleznete veškeré služby: MŠ, ZŠ, obchody, lékaře, MHD, . . . .
Neváhejte tedy a domluvte si prohlídku.
  • Vložení inzerátu:
    3.4.2025
  • Kód:
    00615
  • K dispozici od:
    0.0.0
  • Typ nemovitosti:
    Byt
  • Typ budovy:
    Cihlová
  • Dispozice:
    1+kk
  • Vlastnictví:
    OV
  • Podlaží:
    1
  • Podlahová plocha:
    40 m2
  • Stav objektu:
    Velmi dobrý
  • Voda:
    dálkový vodovod
  • Elektřina:
    230 V
  • Doprava:
    silnice, MHD, autobus, vlak
  • Topeni:
    ústřední elektrické
  • Odpad:
    kanalizace
  • Komunikace:
    asfaltová
  • Energetická náročnost:
    G - Mimořádne nehospodárná
  • Nabídky v okolí:
  • Informace o obci:
    Obec Pardubice má 90401 obyvatel, z toho 62260 v produktivním věku.
    V obci se nachází pošta.
    V obci se nachází škola, popř. školka.
    V obci se nachází zdravotní zařízení.
    V obci je rozvod kanalizace.
    V obci je rozvod městské vody.
    V obci je rozvod plynu.

Podobné nabídky v okolí

Lokalita: Jana Palacha , Pardubice, okres Pardubice, Česká republika Jana Palacha, Pardubice