Pronájem bytu 1+kk, 39 m2 - Jedličkova, Ostrava, okr. Ostrava-město (již není v nabídce)
            
            
                
        Cena:
                        6 500 Kč/měsíc
        
              Stav:archiv
        
         
          
          
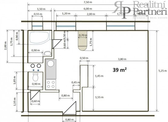
                1+kk, 39 m2, cihlová, OV, 3. podlaží          
        
        Popis:
        
                                Nabízíme pronájem bytu o velikosti 1+kk ,  který se nachází na ulici Jedličkova Ostrava  -  Zábřeh.   Byt o celkové ploše 39 m2 se nachází ve 3.  patře činžovního domu,...  který je zateplen,  má novou fasádu a nová plastová okna.  Dům se nachází v klidném prostředí obklopený zelení.  V domě není výtah.  Byt je v osobním vlastnictví a je plně vybaven,  včetně pračky,  ledničky a sedačky s konferenčním stolkem (kromě postele).  Nově zrekonstruována chodba a sociální zařízení WC,  koupelna s rohovou vanou a nový úsporný plynový kotel (ohřev vody i topení).  Byt je situován na jihovýchodní stranu.  K dispozici je sklepní kóje.  Slušní sousedé,  bezproblémové parkování před domem.  Celkové měsíční nájemné činí 6. 500,  - Kč.  Tato částka obsahuje i náklady spojené se správou domu (2 400 Kč).  V nájmu nejsou zahrnuté platby za elektrickou energii a plyn cca 1 500 Kč .  V blízkosti veškerá občanská vybavenost.  Doporučujeme nezávaznou prohlídku. 
            
            
    - Vložení inzerátu:
26.1.2021 
     - Kód:
1533 
         - Typ nemovitosti:
Byt 
 
            - Typ budovy:
Cihlová 
     
            - Dispozice:
1+kk 
     
    - Vlastnictví:
OV 
     - Podlaží:
3 
     
    
            - Podlahová plocha:
39 m2
             
                                                
            - Stav objektu:
Velmi dobrý 
                 
                        
                    
                
            - Odpad:
kanalizace 
     
    - Zařízený:
Ano 
         
    - Energetická náročnost:
G - Mimořádne nehospodárná 
     - Podle vyhlášky:
c. 78/2013 Sb. 
     
    - Nabídky v okolí:
 
- Informace o obci:
Obec Ostrava má 303609 obyvatel, z toho 212976 v produktivním věku.
V obci se nachází pošta.
V obci se nachází škola, popř. školka.
V obci se nachází zdravotní zařízení.
V obci je rozvod kanalizace.
V obci je rozvod městské vody.
V obci je rozvod plynu.
 
 
            
         
     
        
            Lokalita:
            
                Jedličkova , Ostrava, okres Ostrava-město, Česká republika
                
                                                                
                                                                                                                                                                                                                                                                                    Jedličkova, Ostrava, okr. Ostrava-město