Pronájem bytu 1+kk, 38 m2 - U Pentlovky, Praha 8, Praha (již není v nabídce)
Cena:
16 000 Kč/měsíc
Stav:archiv
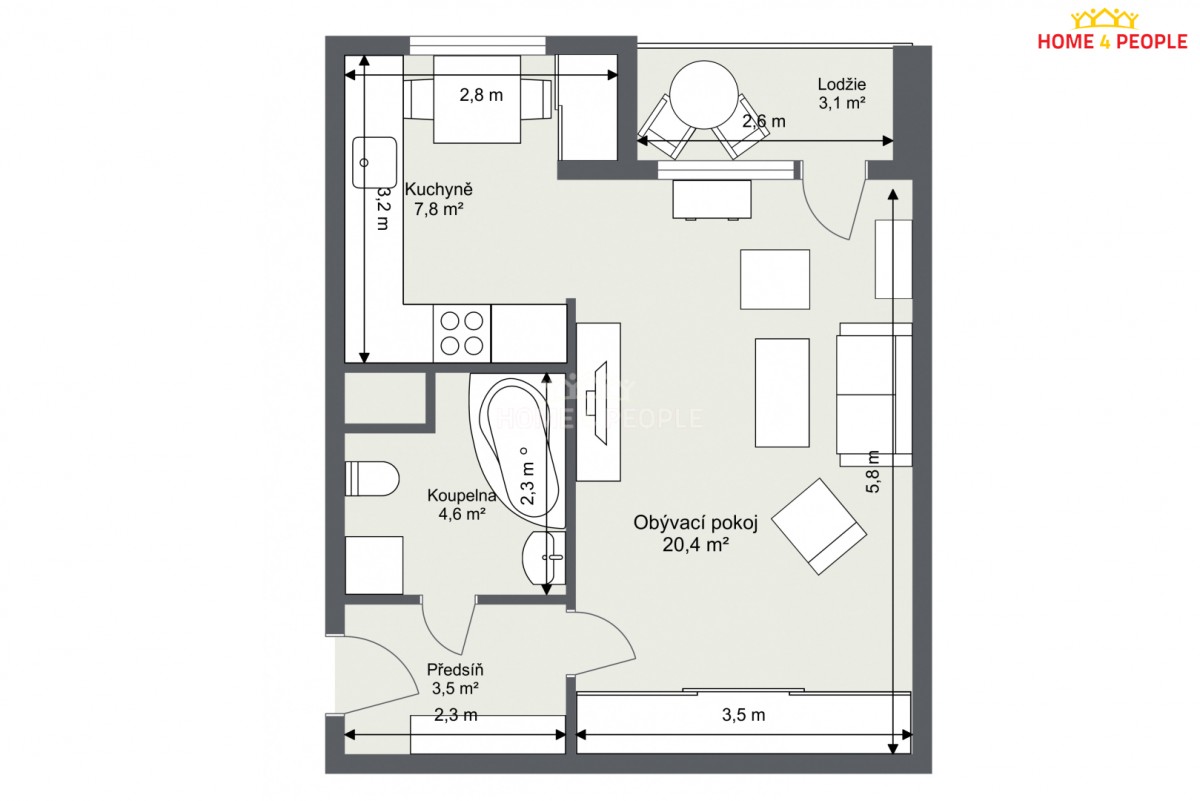
1+kk, 38 m2, panelová, OV, 1. podlaží
Popis:
+ provize Rk, elektřina převod na nájemce 850, - Kč, poplatky 4111, - Kč. Zprostředkujeme Vám ve výhradním zastoupení majitele pronájem prostorného bytu 1+kk o velikosti 38m².... Byt se nachází v přízemí v udržovaném domě s výhledem do zeleně . Kuchyňská linka je vybavena lednicí, sklokeramickou dvoj plotýnkou, k dispozici je i jídelní stůl. Obývací pokoj též vybaven, včetně prostorné skříně s velkým úložným prostorem a postele. V koupelně je k dispozici i pračka, sociální zařízení WC. Celý byt je orientovaný do zeleně s klidným výhledem. Skvělá dopravní dostupnost - velice dobré spojení s centrem autobusem na metro Kobylisy. Zastávky autobusu jsou jenom tři minuty chůze od domu. V této lokalitě najdete také kompletní síť obchodů (obchodní centrum Krakov) a služeb i zdravotnických zařízení. Neváhejte mě kontaktovat pro více informací nebo prohlídku. Byt je volný k nastěhování ihned. Pronajímatel si vyhrazuje právo vybrat zájemce na základě jím zvolených kritérií. Byt je vhodný pro jednu osobu či pár. Ev. číslo: 31693. Energetický štítek: C (1 kWh/m2/rok).
- Vložení inzerátu:
10.4.2025
- Kód:
3972555
- Typ nemovitosti:
Byt
- Typ budovy:
Panelová
- Dispozice:
1+kk
- Vlastnictví:
OV
- Podlaží:
1
- Podlahová plocha:
38 m2
- Balkón:
Ano
- Lodžie:
Ano
- Sklep:
Ano
- Stav objektu:
Velmi dobrý
- Zařízený:
Ano
- Energetická náročnost:
C - Úsporná
- Ukazatel náročnosti:
1 kWh/m2
- Nabídky v okolí:
Lokalita:
U Pentlovky , Praha 8, Praha, Česká republika
U Pentlovky, Praha 8, Praha