Pronájem bytu 1+kk, 35 m2 - Družby 341, Polabiny, Pardubice, okr. Pardubice (již není v nabídce)
Cena:
9 200 Kč/měsíc
Stav:archiv
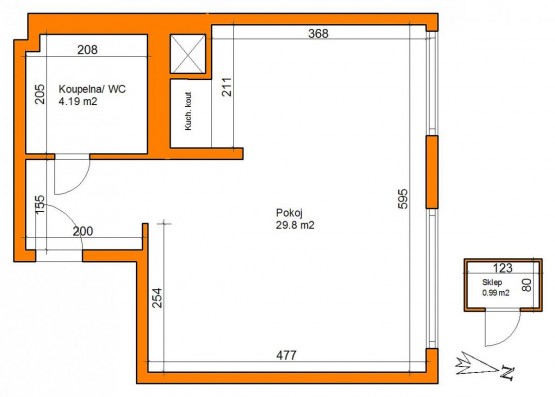
1+kk, 35 m2, panelová, OV, 10. podlaží
Popis:
Dobrý den, máte rádi zrekonstruované byty, světlé, čisté a moderní? Jste nároční i v případě pronájmu? To je dobře, protože právě Vás by mohla zaujmout naše nová nabídka. Jedná se o pronájem bytu ...uchyňský kout">1+kk, který vznikl z dispozice 1+1 a díky tomu, je světlý a vzdušný. Jeho celková výměra činí 34, 98 m2 a je umístěný v 10. NP (desáté nadzemní patro) panelového domu v lokalitě Polabiny, ulice Družby. Součástí nájmu je vybavení bytu, které je nové nepoužité (pračka, lednička, varná deska, trouba). Výše nájmu tohoto neobvyklého bytu činí 9. 200, - Kč + zálohy na energie a služby (1. 400, - Kč). Jistota (dříve kauce) činí 21. 200, - Kč. Provize RK 8. 800, - Kč + DPH (provize včetně DPH 10. 648, - Kč). Ihned k dispozici. Na závěr bych Vás chtěl pozvat na prohlídku tohoto neobvykle provedeného vzdušného a světlého bytu. Buďte první kdo bude užívat tento byt. Děkuji Václav Růžička RV Reality
- Vložení inzerátu:
14.2.2019
- Kód:
XA-293
- Typ nemovitosti:
Byt
- Typ budovy:
Panelová
- Dispozice:
1+kk
- Vlastnictví:
OV
- Podlaží:
10
- Podlahová plocha:
35 m2
- Stav objektu:
Velmi dobrý
- Bezbariérový byt:
Ano
- Topeni:
ústřední dálkové
- Bezbariérový přístup:
Ano
- Nabídky v okolí: