Pronájem bytu 1+kk, 33 m2 - Vladycká, Praha 15, Praha (již není v nabídce)
Cena:
16 000 Kč/měsíc
Stav:archiv
1+kk, 33 m2, cihlová, OV, 2. podlaží
Popis:
+ zálohy na energie a služby 3. 000, - Kč/měsíc + elektřina a internetové připojení převedena na nájemce, kauce, pro. Reality 11 Vám zprostředkují pronájem slunného, útulného bytu 1...+kk s balkónem, umístěného v 1. patře novostavby včetně výtahu, nedaleko stanice MHD, obchodů i zeleně, v příjemné části Prahy - Hostivař.
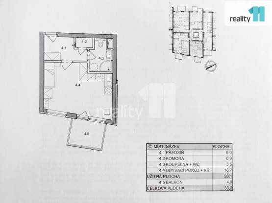
Byt, jehož užitná plocha činí 28. 1 m² (+ balkon 4. 9 m²) je pronajímán zařízený nábytkem. Dispozičně je rozdělen na vstupní chodbu s dostatkem místa pro skříň i botník, obytný pokoj s kuchyňskou linkou (lednice s mrazničkou, horkovzdušná trouba, sklokeramická deska), dvoupostelí a velkou komodou. Dále koupelna se sprchovým koutem, toaletou a pračkou a komora s několika regály.
Obě okna jsou orientována do klidné ulice. Prostorný balkón je vhodný k posezení po náročném dni. Plastová okna, plovoucí podlahy, obložkové dveře. K bytu není sklep ani garážové stání, ale je zde možnost parkování přímo u domu.
Dům je součástí projektu Bydlení v Hostivaři. Nájemné 16. 000, - Kč + zálohy na poplatky v domě činí 3. 000, - Kč (2 osoby) + elektřina a internetové připojení bude převedena na nájemce. Kauce 38. 000, - Kč, provize 16. 000, - Kč.
V okolí nalezneme veškerou občanskou vybavenost, Lidl cca 3 minuty chůze, obchodní centrum Vivo Hostivař 10 minut, stanice MHD se spoji na metro C nebo A. Rovněž Nádraží Hostivař asi 10 minut chůze, odtud trvá cesta vlakem do centra 15 minut. Velmi snadný nájezd na pražský okruh, na dálnice směr Brno, Hradec Králové, Liberec. Mnoho možností pro sport a relaxaci. Doporučujeme osobní prohlídku. Vhodné pro jednotlivce nebo pár. Ev. číslo: 21263. Energetický štítek: B (92 kWh/m2/rok).
- Vložení inzerátu:
19.1.2026
- Kód:
4072586
- Typ nemovitosti:
Byt
- Typ budovy:
Cihlová
- Dispozice:
1+kk
- Vlastnictví:
OV
- Podlaží:
2
- Podlahová plocha:
33 m2
- Balkón:
Ano
- Stav objektu:
Novostavba
- Zařízený:
Ano
- Energetická náročnost:
B - Velmi úsporná
- Ukazatel náročnosti:
92 kWh/m2
- Nabídky v okolí:
Lokalita:
Vladycká , Praha 15, Praha, Česká republika
Vladycká, Praha 15, Praha