• Sledovat cenu
  •  

Zasílání upozornění emailem:

Pronájem bytu 1+kk, 33 m2 - Habrmannovo náměstí, Plzeň, okr. Plzeň-město (již není v nabídce)

Cena: 7 500 Kč/měsíc
Stav:archiv
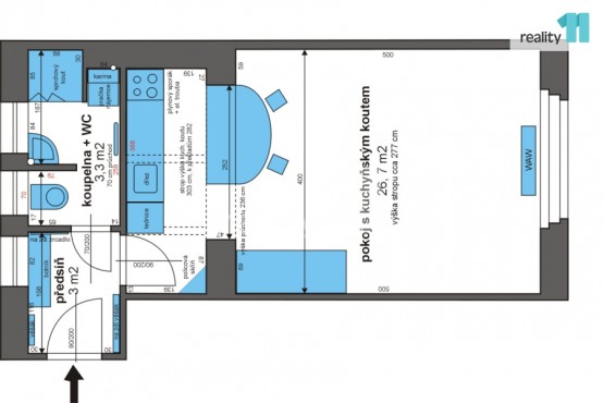
1+kk, 33 m2, cihlová, OV, 2. podlaží
Popis: Záloha na služby 500, - Kč/měsíc na osobu + plyn a elektřina, kauce 15000, - Kč, provize RK 7500, - Kč. . Reality 11 Vám zprostředkují pronájem bytu 1+kk, 33 m², ve 2. ... podlaží rekonstruovaného cihlového domu na Doubravce. Prakticky řešený malý byt, orientovaný na JV, po kompletní rekonstrukci, s nadstandardním vybavením - kuchyňská linka s vestavěnými spotřebiči - plyn. varná deska, el. trouba, odsavač par a chladnička, kuchyňský kout oddělený barovým pultem s jídelním stolem, velká vestavěná skříň v pokoji, zařízená koupelna se sprchovým koutem, sociální zařízení WC a pračkou, plastová okna se žaluziemi a sítem proti hmyzu. Přípojka pro příjem kabelové TV a internetové připojeníu. Vytápění - plyn. topidlo WAW, ohřev vody - plyn. ohřívač Karma. K bytu možnost pronájmu zabezpečené kovové sklepní kóje. Kvalitní bydlení v klidném nájemním domě na dobrém místě, s veškerým servisem správy domu, s občanskou vybaveností a MHD v blízkosti. Ihned k pronájmu. Ev. číslo: 24589. Energetický štítek: E (332 kWh/m2/rok).
  • Vložení inzerátu:
    23.8.2022
  • Kód:
    3363894
  • Typ nemovitosti:
    Byt
  • Typ budovy:
    Cihlová
  • Dispozice:
    1+kk
  • Vlastnictví:
    OV
  • Podlaží:
    2
  • Podlahová plocha:
    33 m2
  • Sklep:
    Ano
  • Stav objektu:
    Po rekonstrukci
  • Zařízený:
    Ano
  • Energetická náročnost:
    E - Nehospodárná
  • Ukazatel náročnosti:
    332 kWh/m2
  • Nabídky v okolí:
  • Informace o obci:
    Obec Plzeň má 168808 obyvatel, z toho 116966 v produktivním věku.
    V obci se nachází pošta.
    V obci se nachází škola, popř. školka.
    V obci se nachází zdravotní zařízení.
    V obci je rozvod kanalizace.
    V obci je rozvod městské vody.
    V obci je rozvod plynu.

Podobné nabídky v okolí

Lokalita: Habrmannovo náměstí , Plzeň, okres Plzeň-město, Česká republika Habrmannovo náměstí, Plzeň, okr. Plzeň-město