Pronájem bytu 1+kk, 29 m2 - Nádražní 2924, Moravská Ostrava, Ostrava, okr. Ostrava-město (již není v nabídce)
Cena:
7 500 Kč/měsíc
Stav:archiv
1+kk, 29 m2, panelová, OV, 1. podlaží
Popis:
Úvod:
Hledáte útulný byteček s balkónem na dlouhodobý pronájem? Bezprostřední dostupnost do centra města? Pak jste zde správně!
Naše společnost Vám exkluzivně nabízí k pronájmu byt s lodžií v 1. NP (první nadzemní patro). ... Plastová okna se žaluziemi a parapety. El. rozvody částečně v mědi. Bezpečnostní vstupní dveře. Nové plovoucí podlahy ve všech místnostech kromě sanity, kde je zasazena keramická dlažba. Koupelna se sprchovacím koutem a umyvadlem. Samostatné sociální zařízení WC Kombi. Připojení na pračku/sušičku je přichystáno v komoře. Další komora (náhrada za sklep) je k dispozici na chodbě u vstupních dveří. Nová rohová kuchyňská linka se spotřebiči (el. trouba, el. varná deska, granitový dřez). Litinový radiátor. Veškerý nábytek si musí nájemce zařídit sám. Internet PODA - optika. Společná TV anténa. Výhled na východní stranu. Dva výtahy. Vstup do obytného domu na čip, popř. klíč. Velkou výhodou této oblasti je veškerá občanská vybavenost a velice dobrá dostupnost do všech částí Ostravy díky lokaci centra města.
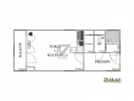
Plochy a rozměry místností:
Pokoj s kuchyní - 17. 59 m2 (520 x 338 cm)
Balkón - 3. 68 m2 (304 x 121 cm)
Předsíň - 4. 13 m2 (298 x 139 cm)
Koupelna - 2. 18 m2 (187 x 116 cm)
sociální zařízení WC - 0. 98 m2 (113 x 87)
Komora - 0. 88 m2 (127 x 69 cm)
- - - - - - - - - - - - - - - - - - - - - - - - - - - - - - - - - - - - - - - - - -
celkem 29. 44 m2
Revitalizace obytného domu:
Plastová okna se žaluziemi a parapety, fasáda + zateplení, 2 krát výtah, kamerový systém, vstupní vchod s poštovními schránkami.
Závěr:
Byt. jednotka je k dispozici ihned. Maximální občanská vybavenost ve všech směrech. Doporučujeme Vám prohlídku. Průkaz energetické náročnosti dle zákona v energetické třídě G. Preferujeme dlouhodobý pronájem a slušného podnájemce, nekuřáka, bez zápisu v registru exekucí (insolvencí). V případě zájmu požadujeme složení 1 krát 15. 000, - Kč vratná kauce, 1 krát 7500, - Kč měsíční nájem, 1 krát 2500, - Kč služby, 1 krát 10. 000, - Kč provize pro RK + přepsání odběru energií a internetové připojeníu na nájemce. Pro více informací kontaktujte našeho makléře. Těšíme se na Vaši návštěvu.
- Vložení inzerátu:
20.6.2025
- Kód:
1607
- Typ nemovitosti:
Byt
- Typ budovy:
Panelová
- Dispozice:
1+kk
- Vlastnictví:
OV
- Podlaží:
1
- Podlahová plocha:
29 m2
- Balkón:
4 m2
- Stav objektu:
Velmi dobrý
- Bezbariérový byt:
Ano
- Telekomunikace:
Internet, Kabelová televize
- Voda:
dálkový vodovod
- Elektřina:
230 V
- Doprava:
silnice, dálnice, MHD, autobus, vlak
- Topeni:
ústřední dálkové
- Odpad:
kanalizace
- Komunikace:
asfaltová
- Bezbariérový přístup:
Ano
- Energetická náročnost:
G - Mimořádne nehospodárná
- Nabídky v okolí: