Pronájem bytu 1+kk, 28 m2 - Radniční, Most (již není v nabídce)
            
            
                
        Cena:
                        6 542 Kč/měsíc
        
              Stav:archiv
        
         
          
          
                1+kk, 28 m2, panelová, OV, 9. podlaží          
        
        Popis:
        
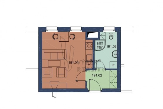
                                Nabízíme k dlouhodobému pronájmu pěkný byt 1+kk,  28 m2,  9.  nadzemní podlaží v ul.  Radniční,  Most.  Objekt se nachází v centru města Most.  Byt je vybaven kuchyňsko...u linkou se sporákem,  koupelna se sprchovým koutem,  závěsnou toaletou a umyvadlem.  Okna plastová,  podlahy plovoucí a keramická dlažba.  V okolí domu je kompletní občanská vybavenost,  nákupní galerie Central a velice dobrá dostupnost do všech částí města.  K bytu je možné pronajmout parkovací stání pod domem.  Nájemní smlouva je na dobou určitou s automatickou prolongací.  Elektřinu si hradí nájemce sám.  K nastěhování ihned. 
            
            
    - Vložení inzerátu:
4.11.2024 
     - Kód:
16796 
     - K dispozici od:
0.0.0 
     - Typ nemovitosti:
Byt 
 
            - Typ budovy:
Panelová 
     
            - Dispozice:
1+kk 
     
    - Vlastnictví:
OV 
     - Podlaží:
9 
     
    
            - Podlahová plocha:
28 m2
             
                                            - Sklep:
2 m2
     
            - Stav objektu:
Velmi dobrý 
         - Rok výstavby:
2009 
     - Rok kolaudace:
2009 
     
                        
                    
                
                
            
    - Energetická náročnost:
C - Úsporná 
         
    - Nabídky v okolí:
 
- Informace o obci:
Obec Most má 67466 obyvatel, z toho 48392 v produktivním věku.
V obci se nachází pošta.
V obci se nachází škola, popř. školka.
V obci se nachází zdravotní zařízení.
V obci je rozvod kanalizace.
V obci je rozvod městské vody.
V obci je rozvod plynu.
 
 
            
         
     
        
            Lokalita:
            
                Radniční , Most, okres Most, Česká republika
                
                                                                
                                                                                                                                                                                                                                        Radniční, Most