• Sledovat cenu
  •  

Zasílání upozornění emailem:

Pronájem bytu 1+1, 40 m2 - Pavlovova 2629, Zábřeh, Ostrava, okr. Ostrava-město (již není v nabídce)

Cena: 7 200 Kč/měsíc
Stav:archiv
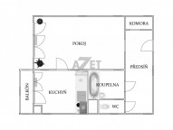
1+1, 40 m2, panelová, OV, 1. podlaží
Popis: Naše společnost Vám nabízí k pronájmu byt v osobním vlastnictví se zaskleným balkónem v původním stavu ve vyvýšeném přízemí. Bezbariérový přístup od přízemí až na samotné patro. Zděné jádro. Plastová okna se žaluziemi a pa...rapety. Kombinované podlahy (PVC linoleum, dřevěné, dlažba). Původní kuchyňská linka s kombinovanou troubou, dřezem a místem pro lednici. Prostorná koupelna se zapuštěnou vanou. Samostatné sociální zařízení WC Kombi. Komora a skříně na uložení věcí v předsíni. Litinové ústřední topení. Bezpečnostní vstupní dveře. Výhled na východní stranu. Na zasklený balkón se vstupuje z kuchyně. Optická přípojka na internetové připojení (PODA). Kompletní revitalizace obytného domu proběhla v roce 2022. Kamerový systém ve společných prostorách. 2 krát výtahy. Velkou výhodou je bezprostřední dostupnost zastávek MHD (2 minuty pěší chůzí) a dostatek parkovacích míst. Maximální občanská vybavenost ve všech směrech. Nabízená nemovitost je k dispozici ihned. Preferujeme dlouhodobý pronájem a slušného nájemce. V případě zájmu požadujeme složení - 1 krát 17. 000, - Kč vratná kauce, 1 krát 7. 200, - Kč měsíční nájem, 1 krát služby 1. 300, - Kč, 1 krát 8. 500, - Kč provize RK + přepsání odběru energií a internetové připojeníu na nájemce. Doporučujeme Vám prohlídku. Pro více informací kontaktujte našeho makléře. Těšíme se na Vaši návštěvu.
  • Vložení inzerátu:
    16.12.2023
  • Kód:
    1226
  • Typ nemovitosti:
    Byt
  • Typ budovy:
    Panelová
  • Dispozice:
    1+1
  • Vlastnictví:
    OV
  • Podlaží:
    1
  • Podlahová plocha:
    40 m2
  • Balkón:
    3 m2
  • Sklep:
    2 m2
  • Stav objektu:
    Dobrý
  • Bezbariérový byt:
    Ano
  • Telekomunikace:
    Internet, Kabelová televize
  • Voda:
    dálkový vodovod
  • Elektřina:
    230 V
  • Doprava:
    silnice, dálnice, MHD, autobus, vlak
  • Topeni:
    ústřední dálkové
  • Plyn:
    plynovod
  • Odpad:
    kanalizace
  • Komunikace:
    asfaltová
  • Bezbariérový přístup:
    Ano
  • Energetická náročnost:
    G - Mimořádne nehospodárná
  • Nabídky v okolí:

Podobné nabídky v okolí

Lokalita: Pavlovova 2629, Zábřeh, Ostrava, okres Ostrava-město, Česká republika Pavlovova 2629, Zábřeh, Ostrava, okr. Ostrava-město