• Sledovat cenu
  •  

Zasílání upozornění emailem:

Pronájem bytu 1+1, 40 m2 - Papírenská 223, Praha 6, Bubeneč, Praha (již není v nabídce)

Cena: 9 400 Kč/měsíc
Stav:archiv
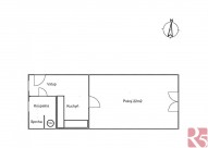
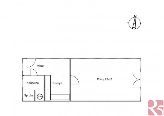
1+1, 40 m2, cihlová, OV, 3. podlaží
Popis: Pronájem 1+1 40m2, P6 - Bubeneč, ul. Papírenská, nezařízen.

Zrekonstruovaný byt se nachází ve 2. patře domu po rekonstrukci v žádané a vyhledávané lokalitě mezi par...kem Stromovka a Šáreckým údolím.

Kuchyňská linka se sporákem, jinak byt nezařízen. Menší kuchyň, větší ložnice, koupelna se sprchou a toaletou. Plovoucí podlaha a dlažba, plastová okna, topení lokální plynové, ohřev vody elektrický (bojler).

Elektrická energie a plyn za spotřebiče se převádí na nájemce.

V pěší dostupnosti tram a bus včetně nočních spojů, 3 min na metro A Dejvická.

V okolí kompletní občanská vybavenost, Kaufland 3 min pěšky, dobré spojení na letiště. V těsné blízkosti parku Stromovka a Šáreckého údol
  • Vložení inzerátu:
    17.6.2021
  • Kód:
    R518703
  • Typ nemovitosti:
    Byt
  • Typ budovy:
    Cihlová
  • Dispozice:
    1+1
  • Vlastnictví:
    OV
  • Podlaží:
    3
  • Podlahová plocha:
    40 m2
  • Stav objektu:
    Po rekonstrukci
  • Bezbariérový byt:
    Ano
  • Telekomunikace:
    Internet
  • Voda:
    dálkový vodovod
  • Elektřina:
    230 V, 380 V
  • Doprava:
    silnice, MHD, autobus, vlak
  • Topeni:
    lokální plynové
  • Plyn:
    plynovod
  • Odpad:
    kanalizace
  • Komunikace:
    asfaltová
  • Bezbariérový přístup:
    Ano
  • Energetická náročnost:
    D - Méne úsporná
  • Nabídky v okolí:

Podobné nabídky v okolí

Lokalita: Papírenská 223, Praha 6, Bubeneč, Praha, Česká republika Papírenská 223, Praha 6, Bubeneč, Praha