• Sledovat cenu
  •  

Zasílání upozornění emailem:

Pronájem bytu 1+1, 38 m2 - Vrchlického, Chrudim

Cena: 11 000 Kč/měsíc
Stav:Volný
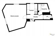
1+1, 38 m2, cihlová, OV, 2. podlaží
Popis: Nabízíme Vám příjemný a útulný byt 1+1 k pronájmu, v klidné a příjemné lokalitě v ulici Vrchlického, v Chrudimi. Byt se nachází ve druhém patře cihlového domu a má užitnou plochu 38 ...m². Disponuje sklepem o velikosti 10 m² a dvorem, kde si můžete užít momenty klidu a relaxace. Byt je částečně zařízený (lednice, sporák) a v dobrém stavu, ideální pro jednotlivce nebo mladý pár. Výhodou je blízkost veškeré občanské vybavenosti a dobrá dostupnost. Doporučuji prohlídku nemovitosti.
  • Vložení inzerátu:
    9.4.2026
  • Kód:
    01226
  • K dispozici od:
    0.0.0
  • Typ nemovitosti:
    Byt
  • Typ budovy:
    Cihlová
  • Dispozice:
    1+1
  • Vlastnictví:
    OV
  • Podlaží:
    2
  • Podlahová plocha:
    38 m2
  • Sklep:
    10 m2
  • Stav objektu:
    Dobrý
  • Energetická náročnost:
    G - Mimořádne nehospodárná
  • Nabídky v okolí:
  • Informace o obci:
    Obec Chrudim má 23240 obyvatel, z toho 16363 v produktivním věku.
    V obci se nachází pošta.
    V obci se nachází škola, popř. školka.
    V obci se nachází zdravotní zařízení.
    V obci je rozvod kanalizace.
    V obci je rozvod městské vody.
    V obci je rozvod plynu.
Lokalita: Vrchlického , Chrudim, okres Chrudim, Česká republika Vrchlického, Chrudim

Kontakt

Bc. Martin Filípek



  • Objednání prohlídky a více informací
  •  
  • Poslat na e-mail
  •  

Zasílání odkazu na realitu emailem: