• Sledovat cenu
  •  

Zasílání upozornění emailem:

Pronájem bytu 1+1, 35 m2 - Štrossova 1571, Bílé Předměstí, Pardubice, okr. Pardubice (již není v nabídce)

Cena: 8 700 Kč/měsíc
Stav:archiv
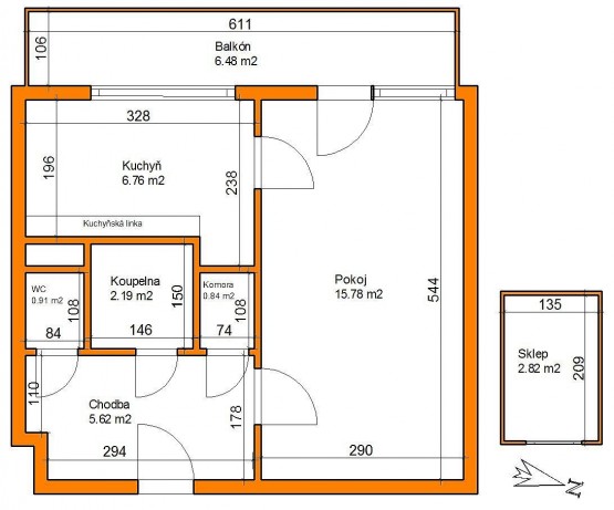
1+1, 35 m2, cihlová, OV, 2. podlaží
Popis: Dobrý den, nabízíme Vám k pronájmu zrekonstruovaný byt o dispozici 1+1, který se nachází v 2. NP (druhé nadzemní patro) zděného domu a jeho celková plocha činí 34, 92 m2 + ...balkón. Lokalita: roh ulic Štrossova a Ke Kamenci, Pardubice. A jak již bylo řečeno, byt prošel rekonstrukcí. Díky této rekonstrukci došlo k vytvoření prostoru pro malou šatnu. Byt je vybaven kuchyňkou linkou se sporákem, jídelním stolkem. Výše nájmu tohoto útulného bytu vychází na 8. 700, - Kč + zálohy na energie (1. 650, - Kč). Peněžitá jistota (vratná kauce) činí 20. 000, - Kč a provize RK 8. 000, - Kč + DPH (provize včetně DPH 9. 680, - Kč). Výborná dostupnost do centra jak MHD tak pěšky. Pokud Vás nabídka zaujala, zvu Vás na prohlídku. Děkuji, Václav Růžička, realitní specialista.

Pronajímatel si vyhrazuje právo vybrat nájemce na základě jím zvolených kritérií.

Podobné nabídky v okolí

Lokalita: Štrossova 1571, Bílé Předměstí, Pardubice, okres Pardubice, Česká republika Štrossova 1571, Bílé Předměstí, Pardubice, okr. Pardubice