• Sledovat cenu
  •  

Zasílání upozornění emailem:

Pronájem bytu 1+1, 33 m2 - Bělehradská, Polabiny, Pardubice, okr. Pardubice (již není v nabídce)

Cena: 8 300 Kč/měsíc
Stav:archiv
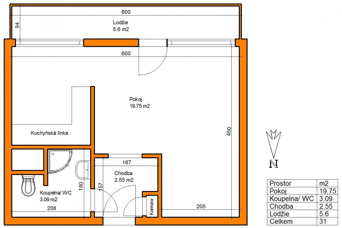
1+1, 33 m2, panelová, OV, 6. podlaží
Popis: Dobrý den, připravujeme pro Vás novou nabídku bytu k pronájmu.

Jedná se o byt 1+1 s lodžií, 33 m2, který se nachází v 6. NP (šesté nadzemní patro) (5. patře) panelového... domu včetně výtahu v lokalitě Pardubice Polabiny. Byt před pár lety prošel rekonstrukcí bytového jádra a je ve velice dobrém stavu. Orientace: jihovýchod. Byt se pronajímá částečně zařízený (lednička, mikrovlnná trouba, stůl + dvě židle). K bytu náleží zasklená lodžie a sklep. Ihned k dispozici.

Výše měsíčního nájmu činí 8. 300 Kč + zálohy na energie a služby ve výši 1. 500 Kč. Peněžitá jistota (vratná kauce) je ve výši 15. 000 Kč. Provize RK činí 8. 000 Kč + DPH (provize včetně DPH 9. 680 Kč).
Omlouvám se za kvalitu fotografií, právě aktualizujeme data k nabídce.

Děkuji Václav Růžička, realitní specialista.
Pronajímatel si vyhrazuje právo vybrat nájemce na základě jím zvolených kritérií.
  • Vložení inzerátu:
    20.1.2021
  • Kód:
    XA-46
  • Typ nemovitosti:
    Byt
  • Typ budovy:
    Panelová
  • Dispozice:
    1+1
  • Vlastnictví:
    OV
  • Podlaží:
    6
  • Podlahová plocha:
    33 m2
  • Lodžie:
    Ano
  • Sklep:
    Ano
  • Stav objektu:
    Dobrý
  • Bezbariérový byt:
    Ano
  • Bezbariérový přístup:
    Ano
  • Energetická náročnost:
    G - Mimořádne nehospodárná
  • Podle vyhlášky:
    c. 78/2013 Sb.
  • Nabídky v okolí:

Podobné nabídky v okolí

Lokalita: Bělehradská , Polabiny, Pardubice, okres Pardubice, Česká republika Bělehradská, Polabiny, Pardubice, okr. Pardubice