• Sledovat cenu
  •  

Zasílání upozornění emailem:

Pronájem bytu 1+1, 30 m2 - U sila 1213, Praha (již není v nabídce)

Cena: 9 500 Kč/měsíc
Stav:archiv
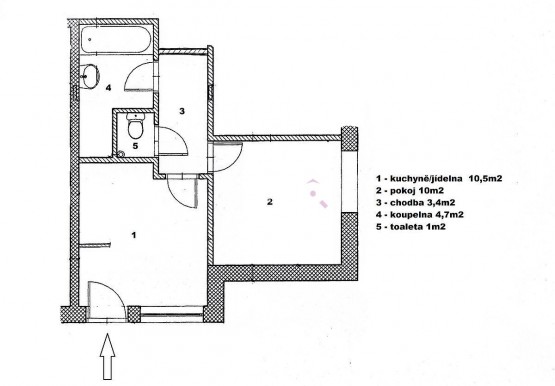
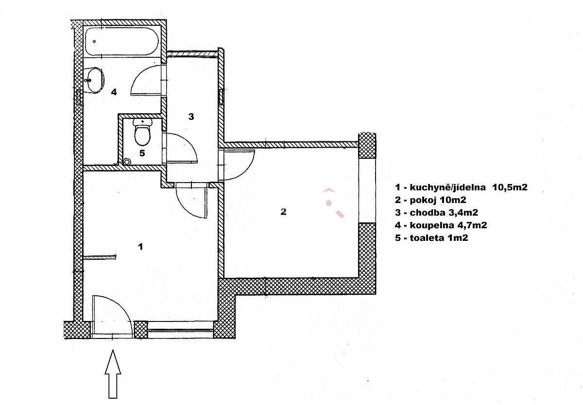
1+1, 30 m2, cihlová, OV, 1. podlaží
Popis: Dlouhodobý pronájem kompletně zařízeného bytu o dispozici 1+1 a výměře cca 30 m2, který je situován v přízemí novostavby rodinného domu. Ten se nachází v klidné vilkové čtv...rti, ul. U Sila v Praze 5 - Řeporyjích. Byt má samostatný vchod, ve vstupní části je umístěn botník. Kuchyňská linka je vybavena lednicí s mrazákem a indukční varnou deskou, navazuje na jídelní část s kuchyňským stolem a 2 židlemi. Pokoj s rohovou skříní je zařízen také lůžkem, psacím stolem, nočním stolkem a poličkou. V prostorné koupelně s vanou i sprchovým koutem je umístěna také pračka. Předností je samostatné sociální zařízení WC . Dlažba a podlahové vytápění dodají na komfortu, okna jsou cloněna praktickými roletkami. Díky orientaci na JV je byt velice světlý a působí příjemným dojmem, neboť celá jeho kompozice byla tvořena s citem pro detail. Nájemce jistě ocení i možnost využívat terasu před bytem pro posezení s hezkým výhledem a parkování vozidla přímo před domem. Byt je nově bíle vymalován, uklizen a připraven k okamžitému nastěhování. Samozřejmostí je výborná dopravní dostupnost – v docházkové vzdálenosti 5 min. se nachází zastávka autobusu nebo vlaku. Nabídka je vhodná pro 1 osobu, chov volně pobíhajících domácích mazlíčků není majiteli dovolen.
  • Vložení inzerátu:
    11.11.2022
  • Kód:
    0817
  • K dispozici od:
    0.0.0
  • Typ nemovitosti:
    Byt
  • Typ budovy:
    Cihlová
  • Dispozice:
    1+1
  • Vlastnictví:
    OV
  • Podlaží:
    1
  • Podlahová plocha:
    30 m2
  • Terasa:
    10 m2
  • Stav objektu:
    Novostavba
  • Rok výstavby:
    2017
  • Rok kolaudace:
    2017
  • Umístění objektu:
    Klidná část
  • Odpad:
    kanalizace
  • Zařízený:
    Ano
  • Energetická náročnost:
    G - Mimořádne nehospodárná
  • Nabídky v okolí:
  • Informace o obci:
    Obec Praha má 1257158 obyvatel, z toho 889974 v produktivním věku.
    V obci se nachází pošta.
    V obci se nachází škola, popř. školka.
    V obci se nachází zdravotní zařízení.
    V obci je rozvod kanalizace.
    V obci je rozvod městské vody.
    V obci je rozvod plynu.

Podobné nabídky v okolí

Lokalita: U sila 1213, Praha, Česká republika U sila 1213, Praha