• Sledovat cenu
  •  

Zasílání upozornění emailem:

Pronájem bytu 1+1, 27 m2 - Zdíkovská, Praha 5, Smíchov, Praha (již není v nabídce)

Cena: 9 500 Kč/měsíc
Stav:archiv
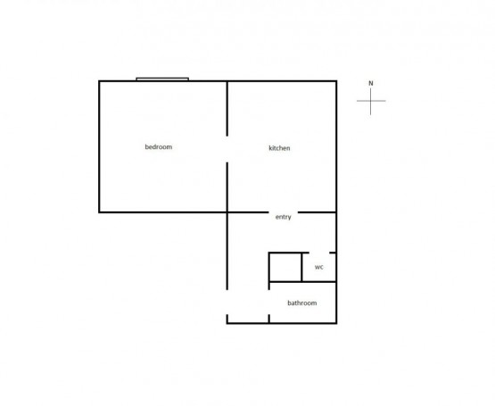
1+1, 27 m2, cihlová, OV, 1. podlaží
Popis: Nabízíme k pronájmu byt 1+1 o celkové rozloze 27 m2, který se nachází v přízemí řadového domu v ulici Zdíkovská na Břevnově. V bytě se nachází obytná místnost, kuchyň, př...edsíň se šatními skříněmi, příslušenství (samostatné sociální zařízení WC, koupelna - umyvadlo sprchový kout). Pronajímané prostory jsou zařízené. Fotky jsou aktuální. Možnost bezplatného parkování v ulici. V blízkosti domu se nachází park , , Ladronka" (sportovně rekreační areál).

Podobné nabídky v okolí

Lokalita: Zdíkovská , Praha 5, Smíchov, Praha, Česká republika Zdíkovská, Praha 5, Smíchov, Praha