• Sledovat cenu
  •  

Zasílání upozornění emailem:

Prodej restaurace 77 m2 - Velký Vřešťov , okr. Trutnov

Cena: 3 999 000 Kč
Stav:Volný
77 m2, cihlová
Popis: Cena k jednání. SKZ REALITY nabízí jedinečnou příležitost k podnikání v rekreačním oblasti u Velkovřešťovského rybníka, nedaleko obce Velký Vřešťov. Máme pro vás na prodej letní restauraci s veškerým vybavením pro okamžitý... začátek podnikání s cenou k jednání. Není třeba nic zařizovat, kolaudovat či měnit. Tato letní restaurace s kvalitní nabídkou je zde v provozu mnoho let a právě to zajišťuje každou sezónu dostatek zákazníků a tomu odpovídající zisky.

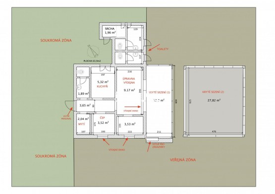
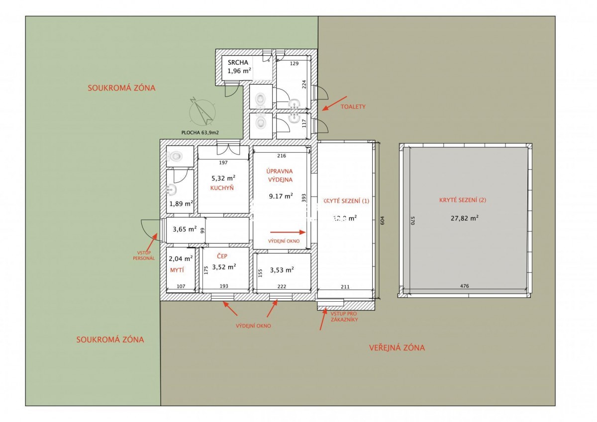
Základem všeho je zděná stavba, kde najdete vše, co k provozování hostinství potřebujete. Dispozice jsou znázorněny na fotografii půdorysu. Zadním vstupem se dostanete do chodby. Vlevo se nachází 2 prostory: sociální zařízení WC s umyvadlem a kuchyně. Vpravo je přípravna, čep s výdejním okénkem a prostor pro výdej zmrzliny. Výdej jídel, fritéza, konvektomat, mikrovlná trouba atd. je největším pracovním prostorem a je na konci chodby s výdejním oknem do prostoru uzavřeného posezení pro hosty. Dispoziční uspořádání stavby je deální pro rychlou a pohodlnou přípravu jídel a nápojů se snadným obstaráváním hostů. Na severovýchodní straně se nachází přístavba, kde najdete sociální zařízení WC pro hosty a sprchový kout pro personál. Součástí nabídky je mj. vagon, karavan, dva prodejní stánky a 2 foliovníky. Lze využít i studnu pro čerpání užitkové vody.

V oploceném areálu je dostatek míst k sezení. Kromě přístavby (14 míst) hlavní stavby je k dispozici zastřešené polo uzavřené posezení s kapacitou 24 míst a další venkovní stoly pro dalších 24 hostů. Celkem je zde možné obsluhovat na 60 - 70 návštěvníků.

Hosté se rekrutují z přilehlého rekreačního střediska (kempu) u rybníka, majitelů karavanů a obytných vozů, rekreačních hostů obývajících chatky, vlastníků chat na protějším břehu rybníka, turistů, cyklistů a velkého množství vášnivých rybářů. Klientela této sezónní restaurace je tedy zajištěna od dubna do října. Lokalita kolem rybníku je ideální pro aktivní odpočinek (rybaření, turistika, cyklistika) a výlety do blízkých měst jako jsou Hořice, Dvůr Králové, Jaroměř a krajské město Hradec Králové.

Nepropásněte příležitost podnikat na tomto moc hezkém místě, neboť i podle územního plánu je zde velký potenciál rozšíření možností př. o ubytování či jiné podnikatelské aktivity. Kontaktujte nás včas.

  • Vložení inzerátu:
    7.4.2026
  • Kód:
    216
  • Typ nemovitosti:
    Restaurace
  • Typ budovy:
    Cihlová
  • Podlahová plocha:
    77 m2
  • Stav objektu:
    Velmi dobrý
  • Voda:
    dálkový vodovod
  • Elektřina:
    230 V, 380 V
  • Bezbariérový přístup:
    Ano
  • Energetická náročnost:
    G - Mimořádne nehospodárná
  • Nabídky v okolí:
  • Informace o obci:
    Obec Velký Vřešťov má 217 obyvatel, z toho 147 v produktivním věku.
    V obci se nachází pošta.
    V obci je rozvod městské vody.
    V obci je rozvod plynu.
Lokalita: Velký Vřešťov , okres Trutnov, Česká republika Velký Vřešťov , okr. Trutnov, Královéhradecký kraj

Kontakt

Mgr. Jaroslav Šmejc



Volná pracovní místa ExpertPrace.cz
  • Objednání prohlídky a více informací
  •  
  • Poslat na e-mail
  •  

Zasílání odkazu na realitu emailem: