Prodej restaurace 245 m2 - Koubkova 1726, Praha 2, Nové Město, Praha (již není v nabídce)
Cena:
11 000 000 Kč
Stav:archiv
245 m2, cihlová
Popis:
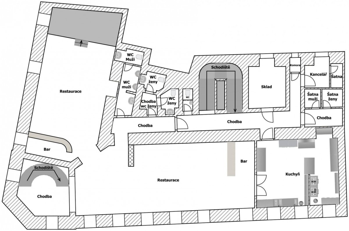
REZERVACE Nebytové prostory o výměře 245 m2 na křižovatce ulic Lublaňská a Koubkova.
Centrum Prahy, stanice metra I. P. Pavlova je vzdálená 300 metrů a do pěti minut chůze.
Nebytové prostory jsou umístěny v roh...ovém secesním domě a mají samostatný vstup přímo na rohu domu. Za dveřmi se nachází vstupní místnost a schody do polosuterénu. Nemovitost je kolaudovaná jako restaurace.
Vhodné využití je např.
- restaurace, jídelna, bar, pivnice, pizzerie
- prodejna, vzorkovna
- fitness centrum
- sídlo firmy, sklad a výdejní místo eshopu
V minulosti zde byla např. oblíbená a dobře prosperující restaurace zařízená ve středověkém stylu, nebo sport bar, v současné době jsou prostory volné.
Atraktivní lokalita pro typ restaurací, které nabízí rozvoz jídla (oblast s vysokou poptávkou, velká kuchyně). V kuchyni je i výtah pro zásobování z ulice.
V 19 - tém století, kdy byl původně secesní dům postavený, zde byla pekárna.
Prodej nemovitosti katastrem od fyzické osoby.
Dobrá viditelnost domu a tedy zapamatování reklamy provozovny, okolo domu se najíždí z Bělehradské ulice na Legerovu.
Ve stejném domě jsou na prodej nebytové prostory v přízemí o výměře 100 m2, které se celé nachází přímo nad restaurací. To nabízí možnost ke stavebnímu propojení obou dvou prostor.
Vhodné jak pro vlastní podnikání, tak i pro investora, který bude nemovitost dále pronajímat. Nebytové prostory lze pronajmout za 75 000 Kč měsíčně + energie a roční čistý výnos nemovitosti je přes 7 %. S vyhledáním zájemce o dlouhodobý pronájem pomůžeme. Zajistíme i výhodné podmínky financování v bance.
- Vložení inzerátu:
24.8.2022
- Kód:
RM1651
- Typ nemovitosti:
Restaurace
- Typ budovy:
Cihlová
- Podlahová plocha:
245 m2
- Plocha parcely:
245 m2
- Stav objektu:
Dobrý
- Voda:
dálkový vodovod
- Topeni:
lokální plynové
- Odpad:
kanalizace
- Komunikace:
asfaltová
- Bezbariérový přístup:
Ano
- Nabídky v okolí: